π Π‘ΠΎΠ³Π»Π°ΡΠΎΠ²Π°Π½ΠΈΠ΅ ΠΏΠ΅ΡΠ΅ΠΏΠ»Π°Π½ΠΈΡΠΎΠ²ΠΊΠΈ Ρ Π±Π°Π»ΠΊΠΎΠ½ΠΎΠΌ: Π³. ΠΡΠ΄ΡΠΎΠ²ΠΎ, ΡΠ». ΠΠ½Π³Π»ΠΈΠΉΡΠΊΠ°Ρ, 5 (ΠΠ Β«Π‘Π΅ΠΌΡ ΡΡΠΎΠ»ΠΈΡΒ», ΠΊΠ²Π°ΡΡΠ°Π» ΠΠΎΠ½Π΄ΠΎΠ½), ΠΠΎΡΠΊΠΎΠ²ΡΠΊΠΈΠΉ ΡΠ°ΠΉΠΎΠ½ Π‘ΠΠ±

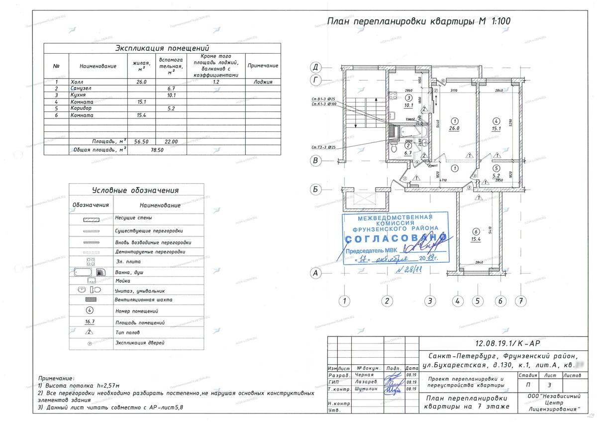
Β«Π₯ΠΎΡΠ΅Π»ΠΎΡΡ, ΡΡΠΎΠ±Ρ ΠΊΠ²Π°ΡΡΠΈΡΠ° Π΄ΡΡΠ°Π»Π°: ΠΎΠ΄ΠΈΠ½ ΠΏΡΠΎΡΡΠΎΡΠ½ΡΠΉ ΡΠ°Π½ΡΠ·Π΅Π», ΡΠ²ΠΎΠ±ΠΎΠ΄Π½ΡΠΉ ΠΏΡΠΎΡ ΠΎΠ΄ Π½Π° ΠΊΡΡ Π½Ρ, Π½ΠΈΠΊΠ°ΠΊΠΈΡ Π»ΠΈΡΠ½ΠΈΡ ΠΏΠ΅ΡΠ΅Π³ΠΎΡΠΎΠ΄ΠΎΠΊβ¦Β» β Ρ ΡΠ°ΠΊΠΈΠΌ Π·Π°ΠΏΡΠΎΡΠΎΠΌ ΠΊ Π½Π°ΠΌ ΠΎΠ±ΡΠ°ΡΠΈΠ»ΡΡ Π²Π»Π°Π΄Π΅Π»Π΅Ρ ΠΊΠ²Π°ΡΡΠΈΡΡ Π½Π° ΠΡΡ Π°ΡΠ΅ΡΡΡΠΊΠΎΠΉ. ΠΠ»Π°Π²Π½ΠΎΠ΅ β Π½Π΅ ΠΏΡΠΎΡΡΠΎ ΡΠ΄Π΅Π»Π°ΡΡ, Π° ΠΎΡΠΎΡΠΌΠΈΡΡ Π²ΡΡ ΠΎΡΠΈΡΠΈΠ°Π»ΡΠ½ΠΎ, ΡΡΠΎΠ±Ρ ΠΏΠΎΡΠΎΠΌ Π½Π΅ Π±ΡΠ»ΠΎ ΠΏΡΠΎΠ±Π»Π΅ΠΌ Ρ ΠΏΡΠΎΠ΄Π°ΠΆΠ΅ΠΉ.
Π§ΡΠΎ Ρ ΠΎΡΠ΅Π»ΠΈ ΠΈΠ·ΠΌΠ΅Π½ΠΈΡΡ
ΠΠ»ΠΈΠ΅Π½Ρ ΠΎΠ±ΡΠ°ΡΠΈΠ»ΡΡ Ρ Π·Π°ΠΏΡΠΎΡΠΎΠΌ Π½Π° ΠΊΠΎΠΌΠΏΠ»Π΅ΠΊΡΠ½ΡΡ ΠΏΠ΅ΡΠ΅ΠΏΠ»Π°Π½ΠΈΡΠΎΠ²ΠΊΡ:
- β’ΠΎΠ±ΡΠ΅Π΄ΠΈΠ½Π΅Π½ΠΈΠ΅ ΡΠ°Π½ΡΠ·Π»Π° ΠΈ Π΅Π³ΠΎ ΡΠ²Π΅Π»ΠΈΡΠ΅Π½ΠΈΠ΅ Π·Π° ΡΡΡΡ ΡΠ°ΡΡΠΈ ΠΊΠΎΡΠΈΠ΄ΠΎΡΠ°, ΠΈΠ·ΠΌΠ΅Π½Π΅Π½ΠΈΠ΅ ΡΠ°ΡΠΏΠΎΠ»ΠΎΠΆΠ΅Π½ΠΈΡ ΡΠ°Π½ΡΠ΅Ρ Π½ΠΈΡΠ΅ΡΠΊΠΈΡ ΠΏΡΠΈΠ±ΠΎΡΠΎΠ², Π΄Π΅ΠΌΠΎΠ½ΡΠ°ΠΆ ΠΏΠ΅ΡΠ΅Π³ΠΎΡΠΎΠ΄ΠΊΠΈ ΠΌΠ΅ΠΆΠ΄Ρ ΠΊΡΡ Π½Π΅ΠΉ ΠΈ Ρ ΠΎΠ»Π»ΠΎΠΌ Ρ ΡΡΡΠ°Π½ΠΎΠ²ΠΊΠΎΠΉ ΡΠ°Π·Π΄Π²ΠΈΠΆΠ½ΠΎΠΉ Π΄Π²Π΅ΡΠΈ, Π΄Π΅ΠΌΠΎΠ½ΡΠ°ΠΆ ΠΏΠ΅ΡΠ΅Π³ΠΎΡΠΎΠ΄ΠΊΠΈ ΠΌΠ΅ΠΆΠ΄Ρ ΠΊΠΎΡΠΈΠ΄ΠΎΡΠΎΠΌ ΠΈ ΠΊΠΎΠΌΠ½Π°ΡΠΎΠΉ.
- β’ΠΠ»ΡΡΠ΅Π²Π°Ρ Π·Π°Π΄Π°ΡΠ°: Π²ΡΡ ΡΠ΄Π΅Π»Π°ΡΡ Ρ ΡΠΎΠ±Π»ΡΠ΄Π΅Π½ΠΈΠ΅ΠΌ Π½ΠΎΡΠΌΠ°ΡΠΈΠ²ΠΎΠ², ΡΠ°ΠΊ ΠΊΠ°ΠΊ Π΄ΠΎΠΌ β ΠΏΠ°Π½Π΅Π»ΡΠ½ΡΠΉ, Ρ ΠΎΡΠΎΠ±ΡΠΌΠΈ ΡΡΠ΅Π±ΠΎΠ²Π°Π½ΠΈΡΠΌΠΈ ΠΊ ΠΏΠ΅ΡΠ΅ΠΏΠ»Π°Π½ΠΈΡΠΎΠ²ΠΊΠ°ΠΌ.
ΠΡΠΎΠ±Π΅Π½Π½ΠΎΡΡΠΈ ΠΏΡΠΎΠ΅ΠΊΡΠ°
ΠΠ°Π½Π΅Π»ΡΠ½ΡΠΉ Π΄ΠΎΠΌ 2005 Π³ΠΎΠ΄Π°, 10 ΡΡΠ°ΠΆΠ΅ΠΉ, 6 ΠΏΠΎΠ΄ΡΠ΅Π·Π΄ΠΎΠ²
Π‘ΡΠ΅Π½Ρ β ΠΏΠ°Π½Π΅Π»ΡΠ½ΡΠ΅, ΠΏΠ΅ΡΠ΅ΠΊΡΡΡΠΈΡ β ΠΆΠ΅Π»Π΅Π·ΠΎΠ±Π΅ΡΠΎΠ½Π½ΡΠ΅
ΠΠ°Π·ΠΎΡΠ½Π°Π±ΠΆΠ΅Π½ΠΈΠ΅ ΠΎΡΡΡΡΡΡΠ²ΡΠ΅Ρ
ΠΠ΅ΡΠ΅ΠΏΠ»Π°Π½ΠΈΡΠΎΠ²ΠΊΠ° Π·Π°ΡΡΠ°Π³ΠΈΠ²Π°Π»Π° ΠΌΠΎΠΊΡΡΠ΅ Π·ΠΎΠ½Ρ ΠΈ Π½Π΅ΡΡΡΠΈΠ΅ ΠΏΠ΅ΡΠ΅Π³ΠΎΡΠΎΠ΄ΠΊΠΈ
Π§ΡΠΎ ΠΌΡ ΡΠ΄Π΅Π»Π°Π»ΠΈ
- β’ΠΡΠΎΠ²Π΅Π»ΠΈ Π°ΡΠ΄ΠΈΡ ΠΏΠ»Π°Π½ΠΈΡΠΎΠ²ΠΊΠΈ
- β’ΠΠΎΠ΄Π³ΠΎΡΠΎΠ²ΠΈΠ»ΠΈ ΠΏΡΠΎΠ΅ΠΊΡ ΠΏΠ΅ΡΠ΅ΠΏΠ»Π°Π½ΠΈΡΠΎΠ²ΠΊΠΈ Ρ ΡΡΡΡΠΎΠΌ ΠΏΠ΅ΡΠ΅Π½ΠΎΡΠ° ΡΠ°Π½ΡΠ΅Ρ Π½ΠΈΠΊΠΈ
- β’ΠΠΎΠ»ΡΡΠΈΠ»ΠΈ ΡΠ΅Ρ Π½ΠΈΡΠ΅ΡΠΊΠΈΠ΅ ΡΡΠ»ΠΎΠ²ΠΈΡ
- β’Π‘ΠΎΠ³Π»Π°ΡΠΎΠ²Π°Π»ΠΈ ΠΏΡΠΎΠ΅ΠΊΡ Ρ Π£Π, ΠΠΠ ΠΈ ΠΠΠ
- β’ΠΠΎΠ»ΡΡΠΈΠ»ΠΈ Π°ΠΊΡ Π·Π°Π²Π΅ΡΡΡΠ½Π½ΠΎΠΉ ΠΏΠ΅ΡΠ΅ΠΏΠ»Π°Π½ΠΈΡΠΎΠ²ΠΊΠΈ
- β’ΠΠ½Π΅ΡΠ»ΠΈ ΠΈΠ·ΠΌΠ΅Π½Π΅Π½ΠΈΡ Π² ΠΠΠ Π
Π§ΡΠΎ Π² ΠΈΡΠΎΠ³Π΅
Π’Π΅ΠΏΠ΅ΡΡ ΠΊΠ²Π°ΡΡΠΈΡΠ° ΡΡΠ°Π»Π° Π·Π°ΠΌΠ΅ΡΠ½ΠΎ ΠΊΠΎΠΌΡΠΎΡΡΠ½Π΅Π΅: ΡΠ΄ΠΎΠ±Π½ΡΠΉ ΡΠ°Π½ΡΠ·Π΅Π», ΠΎΡΠΊΡΡΡΠ°Ρ ΠΊΡΡ Π½Ρ, Π»ΠΎΠ³ΠΈΡΠ½ΠΎΠ΅ Π·ΠΎΠ½ΠΈΡΠΎΠ²Π°Π½ΠΈΠ΅. ΠΡΠ΅ ΠΈΠ·ΠΌΠ΅Π½Π΅Π½ΠΈΡ β ΠΎΡΠΈΡΠΈΠ°Π»ΡΠ½ΠΎ ΠΎΡΠΎΡΠΌΠ»Π΅Π½Ρ.
- β’ΠΠΎΠΊΡΠΌΠ΅Π½ΡΡ ΠΏΡΠΈΠ²Π΅Π΄Π΅Π½Ρ Π² ΠΏΠΎΡΡΠ΄ΠΎΠΊ, ΠΏΠ΅ΡΠ΅ΠΏΠ»Π°Π½ΠΈΡΠΎΠ²ΠΊΠ° Π·Π°ΡΠ΅Π³ΠΈΡΡΡΠΈΡΠΎΠ²Π°Π½Π° Π² ΠΠΠ Π.
Π₯ΠΎΡΠΈΡΠ΅ ΡΠ°ΠΊ ΠΆΠ΅?
πβ―Π₯ΠΎΡΠΈΡΠ΅ ΠΎΠ±ΡΠ΅Π΄ΠΈΠ½ΠΈΡΡ ΡΠ°Π½ΡΠ·Π΅Π» ΠΈ ΠΈΠ·ΠΌΠ΅Π½ΠΈΡΡ ΠΏΠ»Π°Π½ΠΈΡΠΎΠ²ΠΊΡ ΠΊΡΡ Π½ΠΈ Π² ΠΏΠ°Π½Π΅Π»ΡΠ½ΠΎΠΌ Π΄ΠΎΠΌΠ΅ β ΠΊΠ°ΠΊ Π½Π° ΠΡΡ Π°ΡΠ΅ΡΡΡΠΊΠΎΠΉ, 130, ΠΊ.1, Π»ΠΈΡ. Π? ΠΠΎΠΌΠΎΠΆΠ΅ΠΌ ΡΠΎΠ³Π»Π°ΡΠΎΠ²Π°ΡΡ ΠΏΠΎ ΠΏΡΠ°Π²ΠΈΠ»Π°ΠΌ ΠΈ ΠΏΡΠΎΠΉΡΠΈ Π²ΡΠ΅ ΡΡΠ°ΠΏΡ Π±Π΅Π· Π½Π΅ΡΠ²ΠΎΠ². ΠΠ°ΠΏΠΈΡΠΈΡΠ΅ Π½Π°ΠΌ β ΡΠ°ΡΡΠΊΠ°ΠΆΠ΅ΠΌ, ΠΊΠ°ΠΊ Π»ΡΡΡΠ΅ ΡΠ΄Π΅Π»Π°ΡΡ.