π ΠΠ²ΠΎΠ΄ Π² ΡΠΊΡΠΏΠ»ΡΠ°ΡΠ°ΡΠΈΡ ΠΏΠΎΡΠ»Π΅ ΠΏΠ΅ΡΠ΅ΠΏΠ»Π°Π½ΠΈΡΠΎΠ²ΠΊΠΈ: ΡΠ». ΠΡΠ°ΡΠ½ΠΎΠΏΡΡΠΈΠ»ΠΎΠ²ΡΠΊΠ°Ρ, 25, Π»ΠΈΡ. Π (ΠΠΈΡΠΎΠ²ΡΠΊΠΈΠΉ ΡΠ°ΠΉΠΎΠ½ Π‘ΠΠ±), ΠΠΈΡΠΎΠ²ΡΠΊΠΈΠΉ ΡΠ°ΠΉΠΎΠ½ Π‘ΠΠ±

Β«Π‘Π΄Π΅Π»Π°Π»ΠΈ ΠΏΠ΅ΡΠ΅ΠΏΠ»Π°Π½ΠΈΡΠΎΠ²ΠΊΡ, ΡΠ΅ΠΏΠ΅ΡΡ Π½ΡΠΆΠ½ΠΎ ΠΎΡΠΎΡΠΌΠΈΡΡ β Π½ΠΎ Π±ΠΎΠΈΠΌΡΡ, ΡΡΠΎ Π² Π΄ΠΎΠΌΠ΅ Ρ Π³Π°Π·ΠΎΠΌ ΡΡΠΎ Π½Π΅Π²ΠΎΠ·ΠΌΠΎΠΆΠ½ΠΎΒ» β Ρ ΡΠ°ΠΊΠΈΠΌ Π·Π°ΠΏΡΠΎΡΠΎΠΌ ΠΊ Π½Π°ΠΌ ΠΎΠ±ΡΠ°ΡΠΈΠ»ΡΡ ΡΠΎΠ±ΡΡΠ²Π΅Π½Π½ΠΈΠΊ ΠΊΠ²Π°ΡΡΠΈΡΡ Π½Π° ΠΡΠ°ΡΠ½ΠΎΠΏΡΡΠΈΠ»ΠΎΠ²ΡΠΊΠΎΠΉ ΡΠ»ΠΈΡΠ΅. Π Π΅ΠΌΠΎΠ½Ρ ΡΠΆΠ΅ Π·Π°Π²Π΅ΡΡΡΠ½, Π΄ΠΎΠΊΡΠΌΠ΅Π½ΡΡ ΠΎΡΡΡΡΡΡΠ²ΠΎΠ²Π°Π»ΠΈ. ΠΡ ΠΏΠΎΠΌΠΎΠ³Π»ΠΈ ΠΎΡΠΎΡΠΌΠΈΡΡ ΠΏΠ΅ΡΠ΅ΠΏΠ»Π°Π½ΠΈΡΠΎΠ²ΠΊΡ ΠΎΡΠΈΡΠΈΠ°Π»ΡΠ½ΠΎ β ΠΎΡ ΠΏΠ΅ΡΠ΅ΠΎΠ±ΠΌΠ΅ΡΠΎΠ² Π΄ΠΎ ΡΠ΅Π³ΠΈΡΡΡΠ°ΡΠΈΠΈ Π² ΠΠΠ Π.
Π§ΡΠΎ Ρ ΠΎΡΠ΅Π»ΠΈ ΠΈΠ·ΠΌΠ΅Π½ΠΈΡΡ
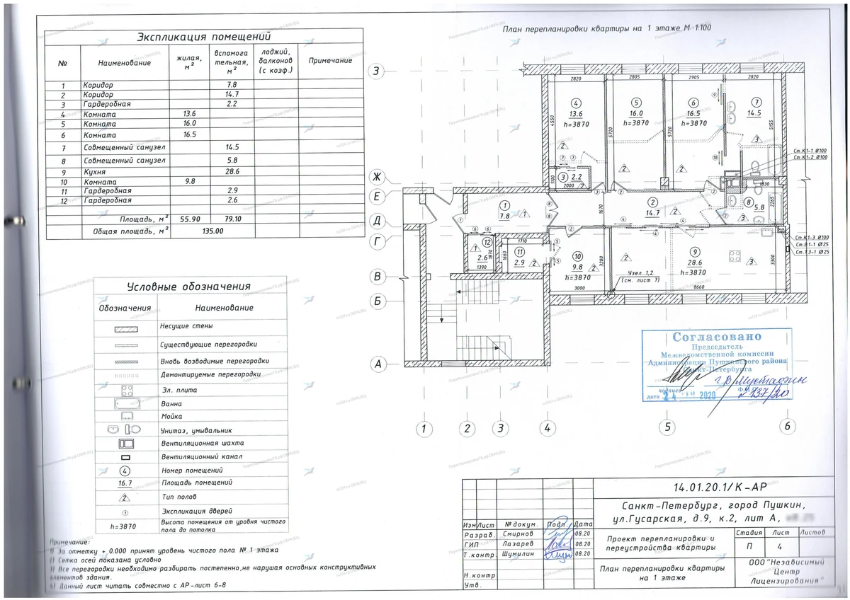
ΠΠ»ΠΈΠ΅Π½ΡΡ Π½ΡΠΆΠ½ΠΎ Π±ΡΠ»ΠΎ ΡΠ·Π°ΠΊΠΎΠ½ΠΈΡΡ ΡΠΆΠ΅ Π²ΡΠΏΠΎΠ»Π½Π΅Π½Π½ΡΠ΅ ΠΈΠ·ΠΌΠ΅Π½Π΅Π½ΠΈΡ. ΠΡ Π²ΡΠΏΠΎΠ»Π½ΠΈΠ»ΠΈ:
- β’ΠΠ΅ΡΠ΅ΠΎΠ±ΠΌΠ΅Ρ ΠΊΠ²Π°ΡΡΠΈΡΡ ΠΏΠΎΡΠ»Π΅ ΠΏΠ΅ΡΠ΅ΠΏΠ»Π°Π½ΠΈΡΠΎΠ²ΠΊΠΈ; β’ ΠΠΎΠ΄Π³ΠΎΡΠΎΠ²ΠΊΡ ΠΏΠΎΠ»Π½ΠΎΠ³ΠΎ ΠΊΠΎΠΌΠΏΠ»Π΅ΠΊΡΠ° Π΄ΠΎΠΊΡΠΌΠ΅Π½ΡΠΎΠ² Π΄Π»Ρ Π²Π²ΠΎΠ΄Π° Π² ΡΠΊΡΠΏΠ»ΡΠ°ΡΠ°ΡΠΈΡ.
ΠΠ»ΡΡΠ΅Π²Π°Ρ ΡΠ΅Π»Ρ β ΠΏΡΠΎΠΉΡΠΈ ΡΠΎΠ³Π»Π°ΡΠΎΠ²Π°Π½ΠΈΠ΅ ΠΈ ΡΠ΅Π³ΠΈΡΡΡΠ°ΡΠΈΡ Π±Π΅Π· Π½Π΅ΠΎΠ±Ρ ΠΎΠ΄ΠΈΠΌΠΎΡΡΠΈ ΠΏΠ΅ΡΠ΅Π΄Π΅Π»ΡΠ²Π°ΡΡ ΡΠ΅ΠΌΠΎΠ½Ρ.
ΠΡΠΎΠ±Π΅Π½Π½ΠΎΡΡΠΈ ΠΏΡΠΎΠ΅ΠΊΡΠ°
ΠΠΎΠΌ 1955 Π³ΠΎΠ΄Π° ΠΏΠΎΡΡΡΠΎΠΉΠΊΠΈ, ΠΊΠΈΡΠΏΠΈΡΠ½ΡΠΉ, 6 ΡΡΠ°ΠΆΠ΅ΠΉ. ΠΠ°Π·ΠΎΡΠ½Π°Π±ΠΆΠ΅Π½ΠΈΠ΅ ΡΠ΅Π½ΡΡΠ°Π»ΡΠ½ΠΎΠ΅. ΠΠ΅ΡΠ΅ΠΊΡΡΡΠΈΡ β ΠΆΠ΅Π»Π΅Π·ΠΎΠ±Π΅ΡΠΎΠ½Π½ΡΠ΅. Π Π°ΠΉΠΎΠ½ β ΠΠΈΡΠΎΠ²ΡΠΊΠΈΠΉ.
ΠΠ»ΡΡΠ΅Π²ΡΠ΅ ΠΎΡΠΎΠ±Π΅Π½Π½ΠΎΡΡΠΈ: β’ Π‘ΡΠ°ΡΡΠΉ ΠΆΠΈΠ»ΠΎΠΉ ΡΠΎΠ½Π΄ Ρ Π³Π°Π·ΠΎΠΌ β ΡΡΠΈΠ»Π΅Π½Π½ΡΠ΅ ΡΡΠ΅Π±ΠΎΠ²Π°Π½ΠΈΡ ΠΊ Π²Π΅Π½ΡΠΈΠ»ΡΡΠΈΠΈ, ΠΌΠΎΠΊΡΡΠΌ Π·ΠΎΠ½Π°ΠΌ ΠΈ ΡΠ°ΡΠΏΠΎΠ»ΠΎΠΆΠ΅Π½ΠΈΡ ΠΎΠ±ΠΎΡΡΠ΄ΠΎΠ²Π°Π½ΠΈΡ; β’ ΠΡΠ΅ ΠΈΠ·ΠΌΠ΅Π½Π΅Π½ΠΈΡ ΡΠΆΠ΅ ΡΠ΅Π°Π»ΠΈΠ·ΠΎΠ²Π°Π½Ρ, Π° Π·Π½Π°ΡΠΈΡ β Π½ΡΠΆΠ΅Π½ ΡΠΎΡΠ½ΡΠΉ ΠΎΠ±ΠΌΠ΅Ρ ΠΈ ΠΏΡΠ°Π²ΠΎΠ²ΠΎΠΉ Π°Π½Π°Π»ΠΈΠ· Β«ΠΏΠΎ ΡΠ°ΠΊΡΡΒ».
Π§ΡΠΎ ΠΌΡ ΡΠ΄Π΅Π»Π°Π»ΠΈ
ΠΡΠΎΠ²Π΅Π»ΠΈ ΠΏΠ΅ΡΠ΅ΠΎΠ±ΠΌΠ΅Ρ ΠΊΠ²Π°ΡΡΠΈΡΡ ΠΈ ΡΠΎΡΡΠ°Π²ΠΈΠ»ΠΈ ΡΠ΅Ρ ΠΏΠ»Π°Π½ ΠΠΎΠ΄Π³ΠΎΡΠΎΠ²ΠΈΠ»ΠΈ ΠΊΠΎΠΌΠΏΠ»Π΅ΠΊΡ Π΄Π»Ρ ΠΏΠΎΠ΄Π°ΡΠΈ ΠΈ Π²Π²ΠΎΠ΄Π° ΠΎΠ±ΡΠ΅ΠΊΡΠ° Π² ΡΠΊΡΠΏΠ»ΡΠ°ΡΠ°ΡΠΈΡ Π‘ΠΎΠΏΡΠΎΠ²ΠΎΠ΄ΠΈΠ»ΠΈ Π΄ΠΎΠΊΡΠΌΠ΅Π½ΡΡ Π΄ΠΎ ΡΠΈΠ½Π°Π»ΡΠ½ΠΎΠΉ ΡΠ΅Π³ΠΈΡΡΡΠ°ΡΠΈΠΈ Π² ΠΠΠ Π
Π§ΡΠΎ Π² ΠΈΡΠΎΠ³Π΅
Π’Π΅ΠΏΠ΅ΡΡ ΠΊΠ²Π°ΡΡΠΈΡΠ° ΠΏΠΎΠ»Π½ΠΎΡΡΡΡ ΠΎΡΠΎΡΠΌΠ»Π΅Π½Π° ΠΏΠΎ Π·Π°ΠΊΠΎΠ½Ρ, Π²ΡΠ΅ ΠΈΠ·ΠΌΠ΅Π½Π΅Π½ΠΈΡ β Π² ΡΠ΅Π΅ΡΡΡΠ΅. ΠΠΎΠΆΠ½ΠΎ ΠΏΡΠΎΠ΄Π°Π²Π°ΡΡ, ΠΎΡΠΎΡΠΌΠ»ΡΡΡ ΠΈΠΏΠΎΡΠ΅ΠΊΡ ΠΈΠ»ΠΈ ΡΠΏΠΎΠΊΠΎΠΉΠ½ΠΎ ΠΆΠΈΡΡ.
Π₯ΠΎΡΠΈΡΠ΅ ΡΠ°ΠΊ ΠΆΠ΅?
Π‘Π΄Π΅Π»Π°Π»ΠΈ ΠΏΠ΅ΡΠ΅ΠΏΠ»Π°Π½ΠΈΡΠΎΠ²ΠΊΡ Π² ΠΊΠΈΡΠΏΠΈΡΠ½ΠΎΠΌ Π΄ΠΎΠΌΠ΅ Ρ Π³Π°Π·ΠΎΠΌ β ΠΊΠ°ΠΊ Π½Π° ΡΠ». ΠΡΠ°ΡΠ½ΠΎΠΏΡΡΠΈΠ»ΠΎΠ²ΡΠΊΠΎΠΉ, 25? ΠΠΎΠΌΠΎΠΆΠ΅ΠΌ ΠΎΡΠΎΡΠΌΠΈΡΡ Π²ΡΡ ΠΎΡΠΈΡΠΈΠ°Π»ΡΠ½ΠΎ ΠΈ Π±Π΅Π· Π»ΠΈΡΠ½ΠΈΡ ΡΠ°Π³ΠΎΠ². ΠΠ°ΠΏΠΈΡΠΈΡΠ΅ β ΠΎΠ±ΡΡΠ΄ΠΈΠΌ Π²Π°Ρ ΡΠ»ΡΡΠ°ΠΉ.