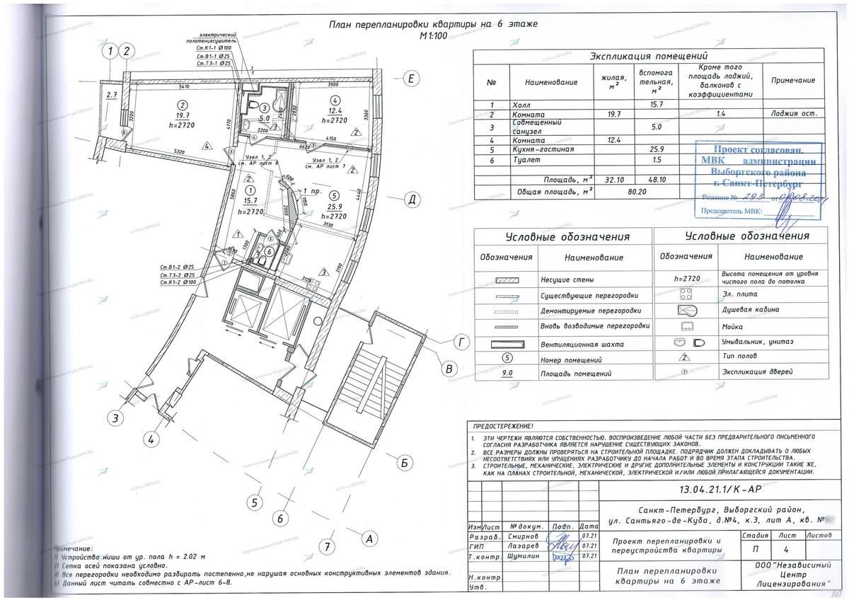
Перепланировка с кладовой и встроенным шкафом: ул. Фёдора Абрамова, 16, корп. 1 (пос. Парголово, Выборгский район СПб), Ленинградская область

«Хотим объединить кухню и гостиную и немного расширить санузел — можно ли это согласовать официально?» — с таким вопросом к нам обратились владельцы квартиры. Мы не только подтвердили, что можно, но и оформили всё: от проекта до регистрации изменений в ЕГРН.
Что хотели изменить
Клиенты заранее обратились за согласованием перепланировки квартиры в Санкт-Петербурге “под ключ”. Что планировалось:
- •увеличение площади совмещённого санузла за счёт части коридора организация кухни-гостиной изменение расстановки сантехнического оборудования.
- •Цель — получить современную и удобную планировку без риска отказа со стороны УК или МВК, и возможных штрафов за самовольную перепланировку и переустройство.
Особенности проекта
Дом 2006 года постройки, монолитный, перекрытия железобетонные, район — Выборгский. При перепланировке нужно было:
- •сохранить нормативные отступы и расположить мокрые зоны в пределах нежилых помещений получить технические условия на подключение к инженерным системам предусмотреть требования к перепланировке при объединении кухни и жилой комнаты.
Что мы сделали
- •Провели аудит документов на старте
- •Разработали проект перепланировки с учётом всех работ
- •Получили технические условия на подключение инженерных коммуникаций
Согласовали проект с:
- •Управляющей компанией (УК)
- •Отделом надзорной деятельности (ОНД)
- •Межведомственной комиссией (МВК) Выборгского района
- •Получили акт МВК
- •Зарегистрировали изменения в ЕГРН
Что в итоге
Планировка стала комфортнее: появилась кухня-гостиная, санузел стал просторнее, документы — полностью оформлены.
- •Квартира юридически чиста. Все изменения отражены в техническом плане.
Хотите так же?
Планируете перепланировку с кухней-гостиной и мокрыми зонами в доме на ул. Сантьяго-де-Куба в Выборгском районе Санкт-Петербурга? Сделаем всё по правилам — с проектом, согласованиями и регистрацией. Просто напишите или позвоните нам по контактам на сайте.