Техническая документация для нежилого объекта ГУП "ТЭК-СПб": ул. Автобусная, 9, лит. В (Санкт-Петербург), Московский район СПб

«Нужно обследовать объект и подготовить техническую документацию для согласования перепланировки ГУПа. Никаких доработок, только по регламенту». С таким запросом к нам обратился пр…
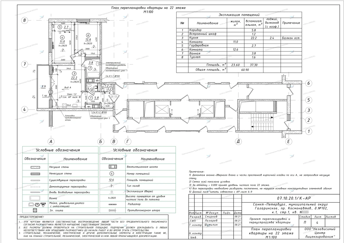
Что хотели изменить
Собственник планировал капитальный ремонт квартиры в монолитно-кирпичном доме, 2019-го года постройки. Но прежде чем приступать, он хотел убедиться, что всё задуманное впишется в нормы, и не придётся сталкиваться с отказами от МВК или УК.
Особенности проекта
Монолитно-кирпичный дом, 2019 года постройки.
Что мы сделали
- •Организовали обследование квартиры
- •Проанализировали технические ограничения по стоякам, несущим стенам и вентиляции
- •Разработали проект перепланировки и переустройства, учитывая СП, СНиП и локальные требования Московского района СПб
- •Подготовили документацию, с которой можно идти в УК и МВК на согласование
Что в итоге
У клиента на руках полный, рабочий проект, адаптированный под особенности дома. Теперь можно спокойно начинать ремонт — с уверенностью, что все изменения будут соответствовать нормам.
- •Проект можно использовать для согласования, подачи в МВК и регистрации в ЕГРН.
Хотите так же?
Планируете перепланировку квартиры в Московском районе? Разработаем проект, который примут с первого раза — без отказов и переделок.