📌 Ввод в эксплуатацию после перепланировки: улица Чапаева, дом 11/4, Петроградский район СПб

«Дом старый, перепланировку сделали, но без документов не можем продать квартиру…» — с таким вопросом к нам обратились собственники в кирпичном доме начала XX века. Мы подключились после завершения ремонта и провели всю процедуру легализации изменений — с переобмерами, подготовкой плана и вводом объекта в эксплуатацию.
Что хотели изменить
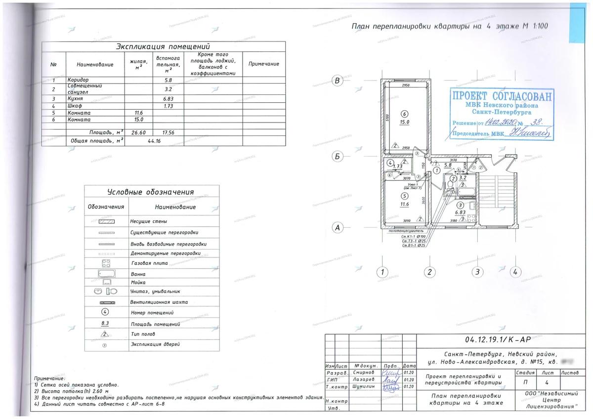
Клиент обратился за узакониванием• Проведение переобмера квартиры после выполненных работ; • Подготовку полного комплекта документов для ввода в эксплуатацию.
Основная задача — оформить изменения официально, без переделок и штрафов, несмотря на исторический контекст объекта.
Особенности проекта
- •Дом 1910 года постройки, кирпичный, 6 этажей. Перекрытия — железобетонные (по техдокументации). Газоснабжение — центральное. Район — Петроградский.• Здание исторического типа → высокие требования по сохранению конструктивных элементов; • Газ в доме требует соблюдения всех норм по вентиляции и размещению оборудования; • Отсутствие проектной документации → вся база строилась на фактическом обмере.
Что мы сделали
- •Провели технические замеры и составили актуальный техплан Подготовили документацию по факту выполненных изменений Согласовали с УК и обеспечили подачу на ввод Сопроводили до регистрации изменений в ЕГРН
- •Провели выездное обследование помещений Составили техническое заключение по текущему состоянию Подготовили комплект документации для ведомственного рассмотрения и возможного переустройства
Что в итоге
Квартира в историческом доме теперь не только уютная, но и полностью узаконенная. Все документы в порядке — можно продавать, оформлять ипотеку или сдавать.
Хотите так же?
Сделали перепланировку в доме начала XX века — как на Чапаева, 11/4? Поможем провести ввод в эксплуатацию с учётом всех требований. Пишите — решим задачу без бюрократии.

