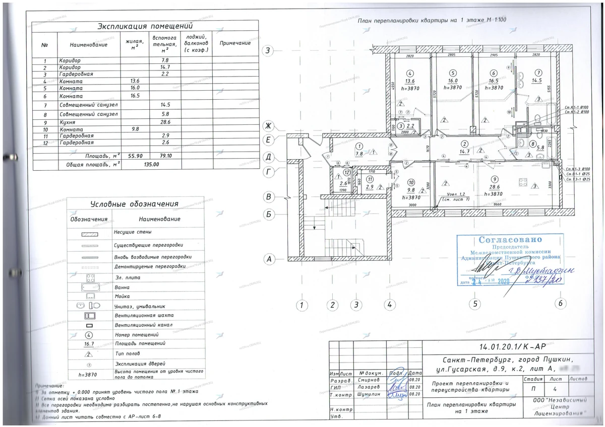
π Π‘ΠΎΠ³Π»Π°ΡΠΎΠ²Π°Π½ΠΈΠ΅ ΠΏΠ΅ΡΠ΅ΠΏΠ»Π°Π½ΠΈΡΠΎΠ²ΠΊΠΈ Ρ Π³Π°ΡΠ΄Π΅ΡΠΎΠ±Π½ΠΎΠΉ ΠΈ ΡΠΎΠ²ΠΌΠ΅ΡΡΠ½Π½ΡΠΌ ΡΠ°Π½ΡΠ·Π»ΠΎΠΌ: ΡΠ». ΠΡΡΠ°ΡΡΠΊΠ°Ρ, 9, ΠΊΠΎΡΠΏ. 2, Π»ΠΈΡ. Π (ΠΡΡΠΊΠΈΠ½ΡΠΊΠΈΠΉ ΡΠ°ΠΉΠΎΠ½ Π‘ΠΠ±), ΠΡΡΠΊΠΈΠ½ΡΠΊΠΈΠΉ ΡΠ°ΠΉΠΎΠ½ Π‘ΠΠ±

Β«Π₯ΠΎΡΠ΅Π»ΠΎΡΡ, ΡΡΠΎΠ±Ρ Π±ΡΠ»ΠΎ ΡΠ΄ΠΎΠ±Π½ΠΎ ΠΈ ΠΏΠΎ-ΡΠΎΠ²ΡΠ΅ΠΌΠ΅Π½Π½ΠΎΠΌΡ β Π±Π΅Π· ΡΠΊΠ°ΠΊΠ°Π½ΠΈΡ ΠΌΠ΅ΠΆΠ΄Ρ Π²Π°Π½Π½ΡΠΌΠΈ ΠΊΠΎΠΌΠ½Π°ΡΠ°ΠΌΠΈ ΠΈ ΡΠΎ ΡΠ²ΠΎΠ΅ΠΉ Π³Π°ΡΠ΄Π΅ΡΠΎΠ±Π½ΠΎΠΉΒ». Π‘ ΡΠ°ΠΊΠΈΠΌ Π·Π°ΠΏΡΠΎΡΠΎΠΌ ΠΊ Π½Π°ΠΌ ΠΎΠ±ΡΠ°ΡΠΈΠ»ΡΡ ΡΠΎΠ±ΡΡΠ²Π΅Π½Π½ΠΈΠΊ ΠΊΠ²Π°ΡΡΠΈΡΡ Π² ΠΊΠΈΡΠΏΠΈΡΠ½ΠΎΠΌ Π΄ΠΎΠΌΠ΅ 2011 Π³ΠΎΠ΄Π° ΠΏΠΎΡΡΡΠΎΠΉΠΊΠΈ. ΠΡ Π½Π΅ ΠΏΡΠΎΡΡΠΎ ΠΎΡΠ²Π΅ΡΠΈΠ»ΠΈ: Β«ΠΌΠΎΠΆΠ½ΠΎΒ». ΠΡ ΠΎΡΠΎΡΠΌΠΈΠ»ΠΈ Π²ΡΡ ΠΎΡΠΈΡΠΈΠ°Π»ΡΠ½ΠΎ β Ρ ΠΏΡΠΎΠ΅ΠΊΡΠΎΠΌ, ΡΠΎΠ³Π»Π°ΡΠΎΠ²Π°Π½ΠΈΡΠΌΠΈ, ΡΠ΅Ρ ΡΡΠ»ΠΎΠ²ΠΈΡΠΌΠΈ ΠΈ Π°ΠΊΡΠΎΠΌ ΠΠΠ.
Π§ΡΠΎ Ρ ΠΎΡΠ΅Π»ΠΈ ΠΈΠ·ΠΌΠ΅Π½ΠΈΡΡ
ΠΠ»ΠΈΠ΅Π½Ρ Ρ ΠΎΡΠ΅Π» ΠΎΡΠ³Π°Π½ΠΈΠ·ΠΎΠ²Π°ΡΡ ΠΏΡΠΎΡΡΡΠ°Π½ΡΡΠ²ΠΎ ΠΏΠΎ-ΡΠ²ΠΎΠ΅ΠΌΡ, Π½ΠΎ Ρ Π³Π°ΡΠ°Π½ΡΠΈΠ΅ΠΉ Π·Π°ΠΊΠΎΠ½Π½ΠΎΡΡΠΈ:
- β’Π‘ΠΎΠ³Π»Π°ΡΠΎΠ²Π°ΡΡ ΡΡΡΡΠΎΠΉΡΡΠ²ΠΎ ΡΠΎΠ²ΠΌΠ΅ΡΡΠ½Π½ΠΎΠ³ΠΎ ΡΠ°Π½ΡΠ·Π»Π°
- β’Π£Π²Π΅Π»ΠΈΡΠΈΡΡ ΠΊΡΡ Π½Ρ Π·Π° ΡΡΡΡ ΡΠ°ΡΡΠΈ ΠΊΠΎΠΌΠ½Π°ΡΡ
- β’Π£ΡΡΡΠΎΠΈΡΡ Π³Π°ΡΠ΄Π΅ΡΠΎΠ±Π½ΡΡ
- β’ΠΠ΅ΡΠ΅Π½Π΅ΡΡΠΈ Π΄Π²Π΅ΡΠ½ΠΎΠΉ ΠΏΡΠΎΡΠΌ Π² ΡΠ°Π½ΡΠ·Π΅Π».
- β’ΠΠ½ ΠΏΠΎΠ½ΠΈΠΌΠ°Π»: Π»ΡΠ±ΡΠ΅ ΠΈΠ·ΠΌΠ΅Π½Π΅Π½ΠΈΡ Ρ ΠΌΠΎΠΊΡΡΠΌΠΈ Π·ΠΎΠ½Π°ΠΌΠΈ ΠΈ ΠΏΠ΅ΡΠ΅Π³ΠΎΡΠΎΠ΄ΠΊΠ°ΠΌΠΈ Π±Π΅Π· ΠΏΡΠΎΠ΅ΠΊΡΠ° β ΡΡΠΎ ΡΠΈΡΠΊ. ΠΠΎΡΡΠΎΠΌΡ ΠΈ Π·Π°ΠΏΡΠΎΡ Π±ΡΠ»: ΠΎΡΠΎΡΠΌΠΈΡΡ ΠΏΠΎ Π·Π°ΠΊΠΎΠ½Ρ, Ρ ΡΠΈΠ½Π°Π»ΠΎΠΌ Π² ΠΠΠ Π.
ΠΡΠΎΠ±Π΅Π½Π½ΠΎΡΡΠΈ ΠΏΡΠΎΠ΅ΠΊΡΠ°
ΠΠΎΠΌ: ΠΊΠΈΡΠΏΠΈΡΠ½ΡΠΉ, 5 ΡΡΠ°ΠΆΠ΅ΠΉ, 2011 Π³ΠΎΠ΄Π° ΠΏΠΎΡΡΡΠΎΠΉΠΊΠΈ
ΠΠ΅ΡΠ΅ΠΊΡΡΡΠΈΡ: ΠΆΠ΅Π»Π΅Π·ΠΎΠ±Π΅ΡΠΎΠ½Π½ΡΠ΅
ΠΠ°Π·ΠΎΡΠ½Π°Π±ΠΆΠ΅Π½ΠΈΠ΅: ΠΎΡΡΡΡΡΡΠ²ΡΠ΅Ρ π οΈ ΠΠ»ΡΡΠ΅Π²ΡΠ΅ ΡΠ΅Ρ Π½ΠΈΡΠ΅ΡΠΊΠΈΠ΅ ΠΌΠΎΠΌΠ΅Π½ΡΡ:
- β’ΠΠΎΠΊΡΠ°Ρ Π·ΠΎΠ½Π° β ΠΏΠΎΡΡΠ΅Π±ΠΎΠ²Π°Π»Π° ΠΏΠΎΠ»ΡΡΠ΅Π½ΠΈΡ ΡΠ΅Ρ Π½ΠΈΡΠ΅ΡΠΊΠΈΡ ΡΡΠ»ΠΎΠ²ΠΈΠΉ Π½Π° ΠΈΠ½ΠΆΠ΅Π½Π΅ΡΠ½ΡΠ΅ ΠΊΠΎΠΌΠΌΡΠ½ΠΈΠΊΠ°ΡΠΈΠΈ
ΠΡΠΎΠ΅ΠΊΡΠ½ΡΠ΅ ΡΠ΅ΡΠ΅Π½ΠΈΡ ΠΏΡΠΎΠ²Π΅ΡΡΠ»ΠΈΡΡ Π½Π° ΠΠΠ, ΡΡΠΈΡΡΠ²Π°Π»ΠΈΡΡ Π°ΠΊΡΡΠ°Π»ΡΠ½ΡΠ΅ Π½ΠΎΡΠΌΡ Π΄Π»Ρ ΡΠΎΠ²ΠΌΠ΅ΡΠ΅Π½ΠΈΡ ΡΠ°Π½ΡΠ·Π»ΠΎΠ² ΠΈ ΠΏΠ΅ΡΠ΅Π½ΠΎΡΠ° ΠΏΡΠΎΡΠΌΠΎΠ².
Π§ΡΠΎ ΠΌΡ ΡΠ΄Π΅Π»Π°Π»ΠΈ
- β’ΠΡΠΎΠ²Π΅Π»ΠΈ Π°ΡΠ΄ΠΈΡ Π΄ΠΎΠΊΡΠΌΠ΅Π½ΡΠΎΠ² Π½Π° ΡΡΠ°ΡΡΠ΅ ΠΈ ΡΡΠ°Π·Ρ ΠΎΠΏΡΠ΅Π΄Π΅Π»ΠΈΠ»ΠΈ Π²ΠΎΠ·ΠΌΠΎΠΆΠ½ΠΎΡΡΡ ΠΏΠ΅ΡΠ΅ΠΏΠ»Π°Π½ΠΈΡΠΎΠ²ΠΊΠΈ
- β’Π Π°Π·ΡΠ°Π±ΠΎΡΠ°Π»ΠΈ ΠΏΡΠΎΠ΅ΠΊΡ Ρ ΡΡΡΡΠΎΠΌ ΡΡΠ΅Π±ΠΎΠ²Π°Π½ΠΈΠΉ ΠΏΠΎ ΠΌΠΎΠΊΡΡΠΌ Π·ΠΎΠ½Π°ΠΌ ΠΈ Π½ΠΎΠ²ΡΠΌ ΠΏΡΠΎΡΠΌΠ°ΠΌ
- β’ΠΠΎΠ»ΡΡΠΈΠ»ΠΈ ΡΠ΅Ρ Π½ΠΈΡΠ΅ΡΠΊΠΈΠ΅ ΡΡΠ»ΠΎΠ²ΠΈΡ Π½Π° ΠΏΠΎΠ΄ΠΊΠ»ΡΡΠ΅Π½ΠΈΠ΅ ΠΈΠ½ΠΆΠ΅Π½Π΅ΡΠ½ΡΡ ΠΊΠΎΠΌΠΌΡΠ½ΠΈΠΊΠ°ΡΠΈΠΉ
Π‘ΠΎΠ³Π»Π°ΡΠΎΠ²Π°Π»ΠΈ Ρ:
- β’Π£Π
- β’ΠΠΠ ΠΡΡΠΊΠΈΠ½ΡΠΊΠΎΠ³ΠΎ ΡΠ°ΠΉΠΎΠ½Π°
- β’ΠΠΎΠ»ΡΡΠΈΠ»ΠΈ Π°ΠΊΡ ΠΏΡΠΈΡΠΌΠΊΠΈ
- β’ΠΠ½Π΅ΡΠ»ΠΈ ΠΈΠ·ΠΌΠ΅Π½Π΅Π½ΠΈΡ Π² ΠΠΠ Π
Π§ΡΠΎ Π² ΠΈΡΠΎΠ³Π΅
Π’Π΅ΠΏΠ΅ΡΡ ΠΊΠ²Π°ΡΡΠΈΡΠ° ΡΠΏΠ»Π°Π½ΠΈΡΠΎΠ²Π°Π½Π° ΠΏΠΎΠ΄ ΠΏΠΎΡΡΠ΅Π±Π½ΠΎΡΡΠΈ ΡΠ΅ΠΌΡΠΈ: Π±ΠΎΠ»ΡΡΠ΅ ΡΠ΄ΠΎΠ±ΡΡΠ²Π°, Π±ΠΎΠ»ΡΡΠ΅ ΡΠ²Π΅ΡΠ°, ΡΡΠ½ΠΊΡΠΈΠΎΠ½Π°Π»ΡΠ½ΠΎΠ΅ Π·ΠΎΠ½ΠΈΡΠΎΠ²Π°Π½ΠΈΠ΅. β ΠΡΠ΅ ΠΈΠ·ΠΌΠ΅Π½Π΅Π½ΠΈΡ ΠΎΡΠΈΡΠΈΠ°Π»ΡΠ½ΠΎ ΠΎΡΠΎΡΠΌΠ»Π΅Π½Ρ ΠΈ Π·Π°ΡΠ΅Π³ΠΈΡΡΡΠΈΡΠΎΠ²Π°Π½Ρ. ΠΠ²Π°ΡΡΠΈΡΠ° Π³ΠΎΡΠΎΠ²Π° ΠΊ ΠΏΡΠΎΠ΄Π°ΠΆΠ΅ ΠΈΠ»ΠΈ ΠΊΠΎΠΌΡΠΎΡΡΠ½ΠΎΠΌΡ ΠΏΡΠΎΠΆΠΈΠ²Π°Π½ΠΈΡ.
Π₯ΠΎΡΠΈΡΠ΅ ΡΠ°ΠΊ ΠΆΠ΅?
ΠΠ»Π°Π½ΠΈΡΡΠ΅ΡΠ΅ ΠΏΠ΅ΡΠ΅ΠΏΠ»Π°Π½ΠΈΡΠΎΠ²ΠΊΡ Ρ Π³Π°ΡΠ΄Π΅ΡΠΎΠ±Π½ΠΎΠΉ ΠΈ ΠΌΠΎΠΊΡΡΠΌΠΈ Π·ΠΎΠ½Π°ΠΌΠΈ Π² ΠΊΠΈΡΠΏΠΈΡΠ½ΠΎΠΌ Π΄ΠΎΠΌΠ΅ Π½Π° ΡΠ». ΠΡΡΠ°ΡΡΠΊΠΎΠΉ Π² ΠΡΡΠΊΠΈΠ½ΡΠΊΠΎΠΌ ΡΠ°ΠΉΠΎΠ½Π΅ Π‘ΠΠ±? ΠΠ°ΠΆΠ΅ Π΅ΡΠ»ΠΈ Π½ΡΠΆΠ½ΠΎ ΡΠ°ΡΡΠΈΡΠΈΡΡ ΠΊΡΡ Π½Ρ ΠΈΠ»ΠΈ ΠΈΠ·ΠΌΠ΅Π½ΠΈΡΡ ΡΠ°Π½ΡΠ·Π΅Π» β ΠΎΡΠΎΡΠΌΠΈΠΌ ΠΏΠΎ ΠΏΡΠ°Π²ΠΈΠ»Π°ΠΌ. Π‘ ΠΏΡΠΎΠ΅ΠΊΡΠΎΠΌ, ΡΠ΅Ρ ΡΡΠ»ΠΎΠ²ΠΈΡΠΌΠΈ ΠΈ ΡΠΈΠ½Π°Π»ΠΎΠΌ Π² ΠΠΠ Π. ΠΡΠΎΡΡΠΎ Π½Π°ΠΏΠΈΡΠΈΡΠ΅ ΠΈΠ»ΠΈ ΠΏΠΎΠ·Π²ΠΎΠ½ΠΈΡΠ΅ Π½Π°ΠΌ ΠΏΠΎ ΠΊΠΎΠ½ΡΠ°ΠΊΡΠ°ΠΌ Π½Π° ΡΠ°ΠΉΡΠ΅.