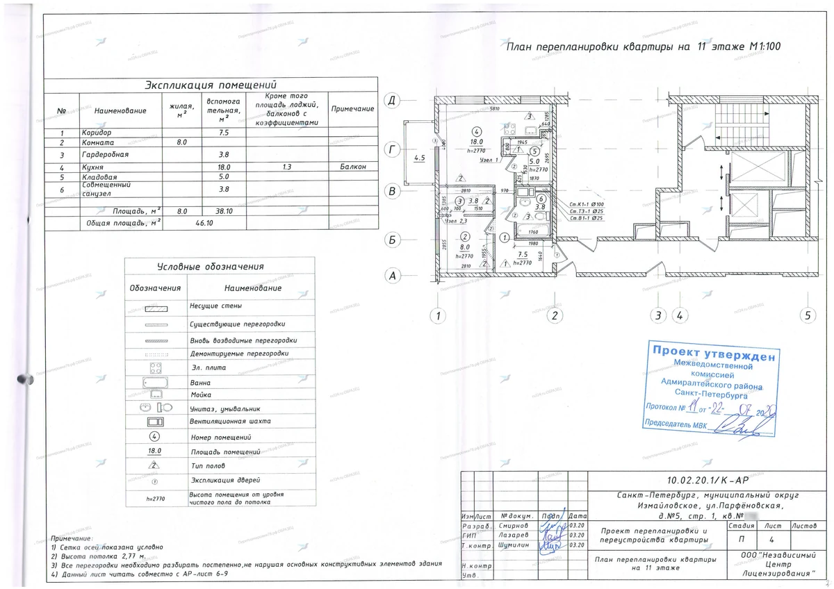
📌 Перепланировка с гардеробной и работами по несущим: Парфёновская ул., 5 (Адмиралтейский район СПб), Адмиралтейский район СПб

«Мечтала о своей тихой зоне с гардеробной и порядком — а не проходной комнатой и хаосом в прихожей». Так сказала хозяйка квартиры, когда пришла с запросом на перепланировку. Но всё оказалось не так просто: несущая, сантехника, раздел КР. Мы не просто утвердили идею. Мы провели всё по проекту — от расчётов до ЕГРН. Сначала было страшно, потом — спокойно. Сейчас всё оформлено.
Что хотели изменить
Клиентка решилась на переделку, чтобы уйти от ощущения «временного жилья» и сделать квартиру действительно своей:
- •Перенести дверной проём между комнатой и коридором (менять логику движения)
- •Устроить гардеробную на части жилой комнаты
- •Перераспределить сантехнику и подключить к существующим стоякам ГВС/ХВС/канализации
- •«Было страшно, что в старом доме это нельзя. Что скажут “нельзя трогать несущие”. А оказалось — можно. Главное — как».
Особенности проекта
Дом: монолитно-кирпичный, 14 этажей, 2018 год постройки
Перекрытия: железобетонные
Газоснабжение: отсутствует
- •️ Что требовало особого подхода:
Работы затрагивали несущие конструкции — поэтому проект разрабатывался с разделом КР (конструктивные решения)
Изменение расположения сантехники — потребовалось получение технических условий
Все работы нужно было согласовать поэтапно с УК, МВК и ОНД
Что мы сделали
- •Оценили планировку и сразу определили: без раздела КР не обойтись
- •Подготовили проект перепланировки с расчётами по усилению конструкций
- •Получили технические условия на подключение инженерных коммуникаций
Согласовали с:
- •Управляющей компанией
- •МВК Адмиралтейского района
- •ОНД
- •Получили акт приёмки
- •Внесли изменения в ЕГРН
Что в итоге
Теперь в квартире — чёткое зонирование: тишина в спальне, порядок в гардеробной, удобство в санузле. ✅ Все изменения узаконены. Хозяйка наконец чувствует: «Это моё. Сделано под меня. И по закону».
Хотите так же?
Хотите узаконить перепланировку с гардеробной и переносом проёмов в монолитном доме в Адмиралтейском районе?
Даже если нужны расчёты по несущим или перенос сантехники — всё оформим грамотно. От проекта с разделом КР до ЕГРН.