Перепланировка в доме 1875 года с демонтажом перегородки и новой сантехникой: ул. Союза Печатников, 13–15 (Адмиралтейский район СПб), Адмиралтейский район СПб

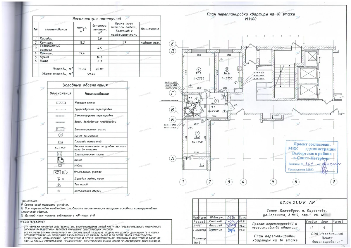
«Можно ли немного сместить проём на кухне и объединить санузел, чтобы всё было по закону?» — с этим вопросом обратился собственник квартиры в Парголово. Мы подтвердили: да, можно. И провели всё официально — с проектом, согласованиями и регистрацией в ЕГРН.
Что хотели изменить
Клиент заранее пришёл с задачей:
- •сместить дверной проём на кухне объединить санузел с увеличением за счёт площади коридора расставить сантехническое оборудование с подключением к существующим стоякам горячей, холодной воды и канализации.
- •Он понимал, что даже такие на первый взгляд «незначительные» изменения требуют официального согласования и проектной документации.
Особенности проекта
Дом 2019 года, монолитный, с железобетонными перекрытиями и центральным газом (ЖК «Шуваловский дуэт», мкр. Парголово, Выборгский район). При перепланировке с затрагиванием мокрых зон, кухни и газа потребовалось:
- •соблюдение СП и СНиП получение одобрений по сетям и инженерии точная проектирование нового санузла.
Что мы сделали
- •Провели аудит документов на старте и сразу определили возможность согласования перепланировки
- •Разработали проект перепланировки с учётом пожеланий клиента
Согласовали проект с:
- •Управляющей организацией (УК)
- •Отделом надзорной деятельности (ОНД)
- •Межведомственной комиссией (МВК Выборгского района)
- •Получили акт приёмки
- •Зарегистрировали изменения в ЕГРН
Что в итоге
Квартира теперь с обновлённой планировкой: проёмы, сантехника, мокрые зоны — всё оформлено и внесено в документы.
- •Можно продавать, сдавать или просто жить без риска. Все данные подтверждены в Росреестре.
Хотите так же?
Планируете перепланировку с мокрыми зонами, газом и переносом проёмов в доме на ул. Заречной в пос. Парголово (Выборгский район Санкт-Петербурга)? Сделаем всё грамотно — от проекта до ЕГРН. Просто напишите или позвоните нам по контактам на сайте.