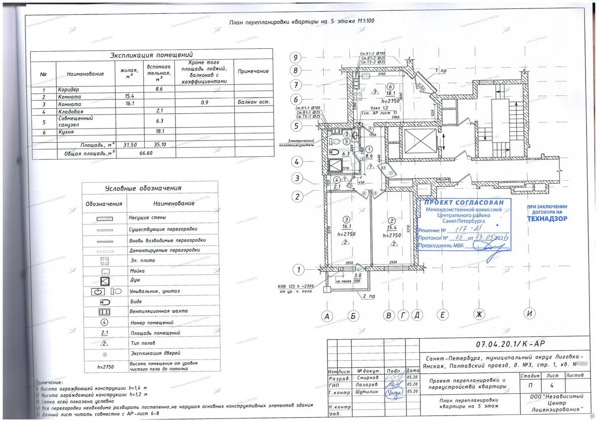
📌 Согласование перепланировки с объединением и увеличением санузла: Полтавский проезд, дом 3, строение 1, Центральный район СПб

«Хочется нормальную ванную, а не тесную нишу в углу — но не знаем, можно ли вообще менять мокрые зоны…» — с таким вопросом обратились владельцы квартиры в современном доме на Полтавском. Жильё новое, но стандартная планировка оставляла желать лучшего. Мы помогли согласовать расширение санузла и провести все изменения официально — от проекта до ЕГРН.
Что хотели изменить
Клиенты• Объединение и увеличение санузла за счёт площади коридора; • Перенос дверного проёма в совмещённом санузле; • Перенос сантехнического оборудования с подключением к стоякам; • Получение технических условий; • Согласование с УК, МВК, ОНД.
Важно было сделать всё без переделок и риска отказа.
Особенности проекта
- •Дом 2019 года, монолитный, 8–9 этажей. Газоснабжение отсутствует. Перекрытия — железобетонные. Район — Центральный, микрорайон Лиговка‑Ямская.• Мокрые зоны и их перенос — требуют точных расчётов и согласования техусловий; • Новостройка → УК и МВК строго следят за соблюдением регламентов; • Все работы проводились до ремонта, на этапе проектирования.
Что мы сделали
Разработали проект перепланировки с учётом санитарных и строительных норм Получили технические условия на подключение инженерии Согласовали с УК, МВК, ОНД Организовали ввод объекта и регистрацию изменений в ЕГРН
Что в итоге
Теперь ванная — просторная, удобная, современная. Всё оформлено по закону и зафиксировано в реестре.
Хотите так же?
Хотите увеличить ванную, как в квартире на Полтавском проезде, 3? Сделаем всё официально и без рисков — от проекта до ввода. Напишите — обсудим ваш вариант.

