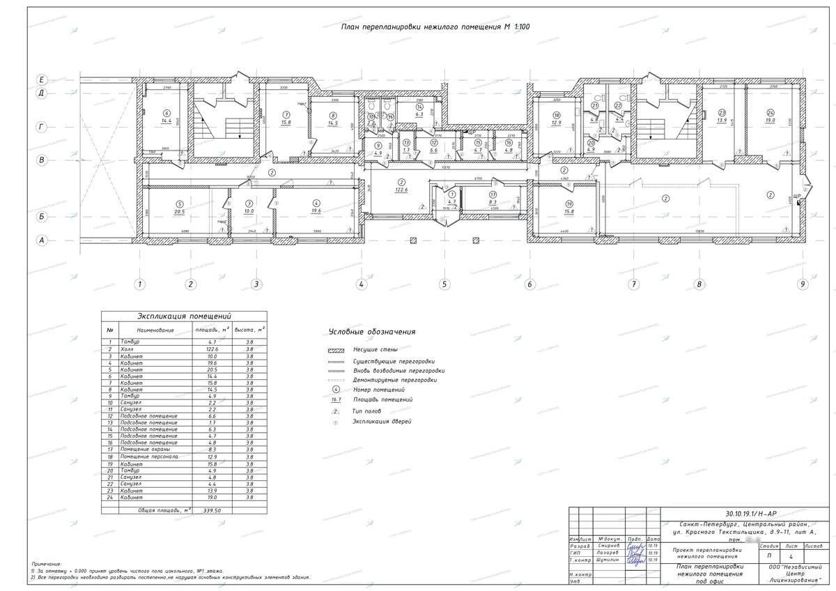
📌 Согласование перепланировки в нежилом помещении: улица Красного Текстильщика, дом 9-11, Лит.А, пом. 12-Н, Центральный район СПб

«Нежилое помещение, дом исторический, не хотим нарваться на штрафы…» — с таким запросом к нам обратились собственники объекта на Красного Текстильщика. Хотели внести изменения, но строго по правилам. Мы подключились на старте — чтобы оценить допустимость работ и подготовить проект под согласование. Сейчас объект в стадии проектирования.
Что хотели изменить
- •Описание объекта и объёма работ находится в разработке.
На текущем этапе ведётся техническое обследование помещения. Мы формируем техническое задание и проверяем возможности будущей перепланировки. Учитываем не только цели собственника, но и ограничения по конструкции здания и статусу здания.
Особенности проекта
Нежилое помещение в историческом здании. Район — Центральный. Дом относится к числу объектов, в которых любые изменения требуют особого подхода.• Статус нежилого помещения = усиленные требования к нормам СНиП и санитарным зонам; • Вероятные ограничения от КГА (если здание в зоне охраны); • Необходимость согласования в несколько инстанций, включая архитектуру и пожарный надзор.
Что мы сделали
- •Провели анализ исходной документации; • Начали техническое обследование помещения; • Составляем задание на проект перепланировки; • Готовим пакет для согласования в УК, МВК, ГАСН, ОНД.
Что в итоге
После завершения обследования и согласования проект будет реализован официально. Мы обеспечим законность всех изменений и финальную регистрацию.
Хотите так же?
Планируете перепланировку нежилого помещения в Центральном районе СПб — как на Красного Текстильщика? Подскажем, что можно, а что нельзя. Подготовим проект и проведём согласование без штрафов и переделок. Напишите или позвоните нам.

