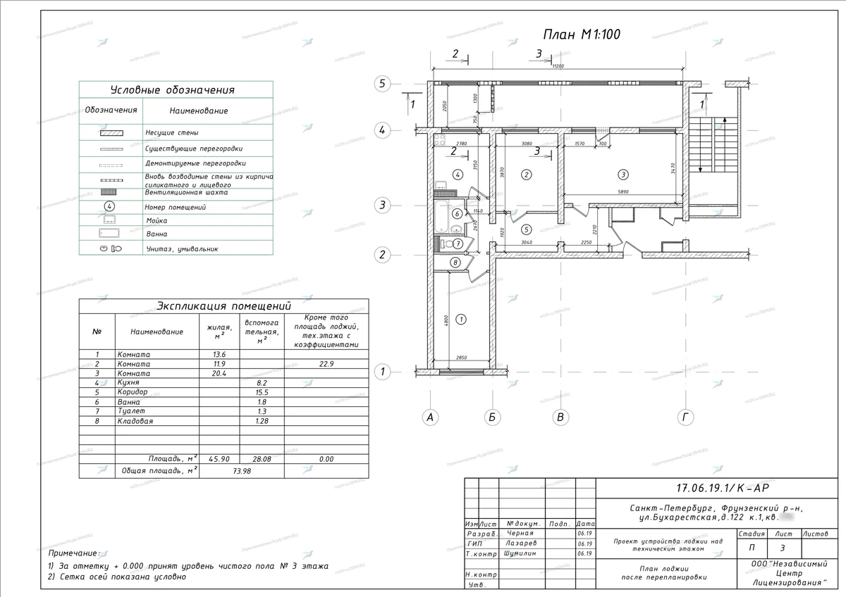
Перепланировка с объединением санузла и встроенными шкафами: ул. Есенина, 1, корп. 2 (Калининский район СПб), Калининский район СПб

Хотелось немного уюта: больше воздуха в коридоре, удобные проходы. Но на пути — несущая стена. В панельном доме 70-х годов, где каждая перегородка — часть конструкции. Такие истории заканчиваются либо отказом, либо «давайте на свой страх и риск». Мы сделали по-другому.
Что хотели изменить
- •Клиенты пришли с продуманной идеей: расширить коридор за счёт площади кухни пробить дверной проём в несущей панельной стене и установить раздвижную дверь
- •перенести сантехнику с подключением к существующим стоякам горячей, холодной воды и канализации. И — да, согласовать перепланировку квартиры во Фрунзенском районе Санкт-Петербурга официально. Не «договориться», не «на удачу», а по закону, чтобы потом спокойно жить или продавать.
Особенности проекта
Дом 1973 года, панельный, перекрытия — железобетон. Проём в несущей — это всегда раздел Конструктивных решений, расчёты, согласования с минимум 4-мя инстанциями. Плюс сантехнические работы, для которых нужны техусловия.
Что мы сделали
Провели обследование, чтобы подтвердить возможность безопасного проёма Разработали проект с разделом КР (усиление несущей конструкции) Получили технические условия для подключения к стоякам Согласовали всё с УК, МВК Фрунзенского района, ГАСН, ОНД Получили акт приёмки и внесли изменения в ЕГРН.
Что в итоге
Проём в несущей не стал проблемой. Коридор стал удобнее, документы — в порядке. ✅ Все изменения внесены в реестр. Можно спокойно оформлять сделки или просто жить без тревоги.
Хотите так же?
Планируете сделать перепланировку квартиры в панельном доме во Фрунзенском районе? Даже если нужен проём в несущей — оформим всё по правилам и без лишних кругов согласования.