📌 Согласование перепланировки с проёмом в несущей и душевой зоной: Кушелевская дорога, 5, корп. 2, лит. А (Калининский район СПб), Калининский район СПб

«Хотим сделать проём в стене и душевую зону без кабины — но страшно, что не согласуют…» — с таким запросом к нам обратились собственники квартиры на Кушелевской дороге. Проект включал всё: несущая стена, мокрая зона и зашивка инженерных коммуникаций. Мы оформили проект с разделом КР и прошли все этапы согласования.
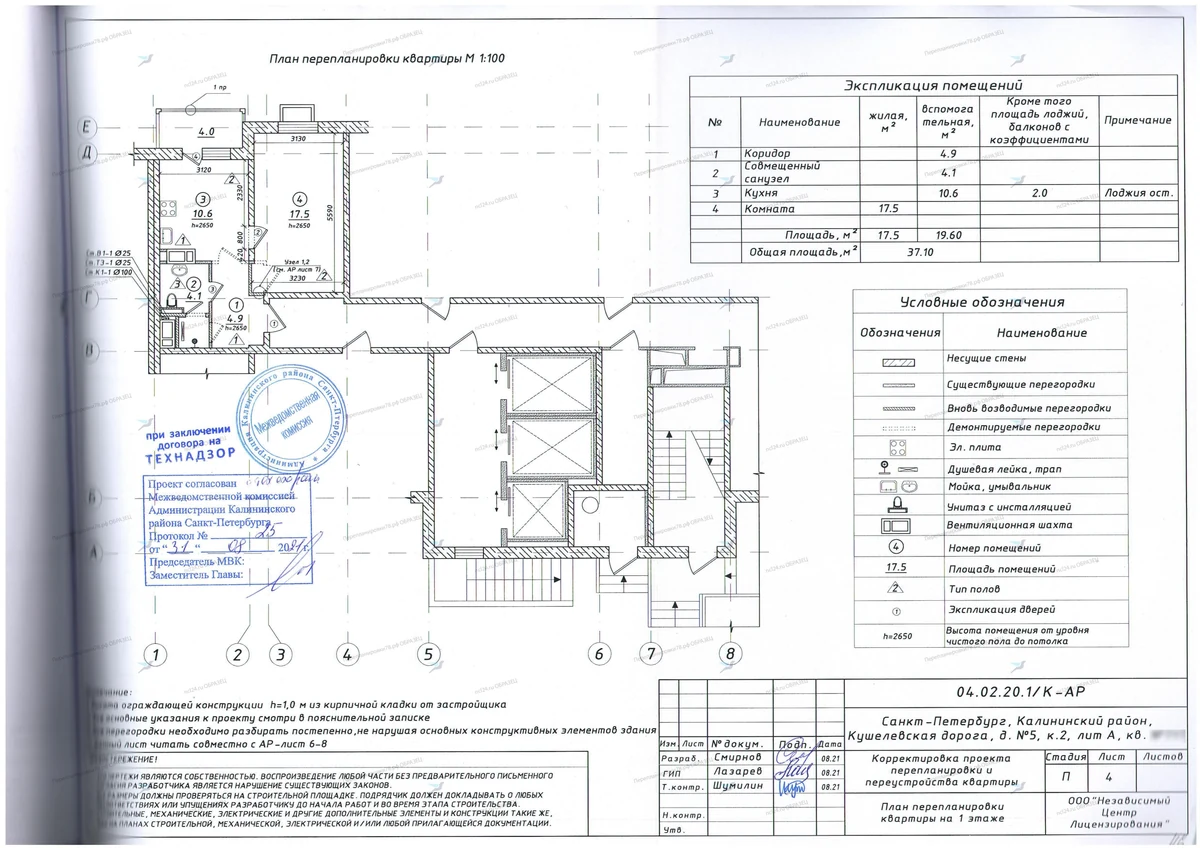
Что хотели изменить
Клиент хотел современную планировку с открытым душем и удобным проходом между кухней и комнатой. Работы включали:
- •Устройство дверного проёма в несущей стене между кухней и комнатой; • Замена душевого поддона на трап с душевой лейкой и подключением к стоякам; • Зашивка инженерных коммуникаций в короб с доступом в санузле; • Проект с разделом КР по усилению конструкции; • Получение технических условий по инженерным системам; • Согласование с УК, МВК, ГАСН, ОНД.
Особенности проекта
Дом 2016 года, монолитный, 25 этажей. Перекрытия — железобетонные. Газ не предусмотрен (электроплиты). Район — Калининский.
Ключевые особенности: • Проём в несущей требует усиления и точных расчётов (раздел КР); • Душевая зона с трапом — особые требования по гидроизоляции и уклонам; • Зашивка труб — только с доступом и по нормативам ВК.
Что мы сделали
Оценили техническую возможность и подготовили проект с разделом КР Получили технические условия и выполнили все расчёты Согласовали проект в УК, МВК, ГАСН, ОНД Довели объект до ввода в эксплуатацию и регистрации в ЕГРН
Что в итоге
Квартира с современной душевой и безопасным проёмом в несущей теперь полностью оформлена. Все изменения — в реестре, всё по закону.
Хотите так же?
Планируете душевую без кабины или проём в несущей — как на Кушелевской дороге, 5? Сделаем всё с расчётами и согласованиями — от проекта до ЕГРН. Напишите нам!