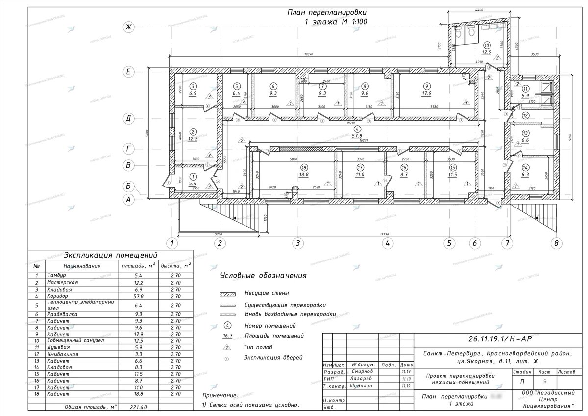
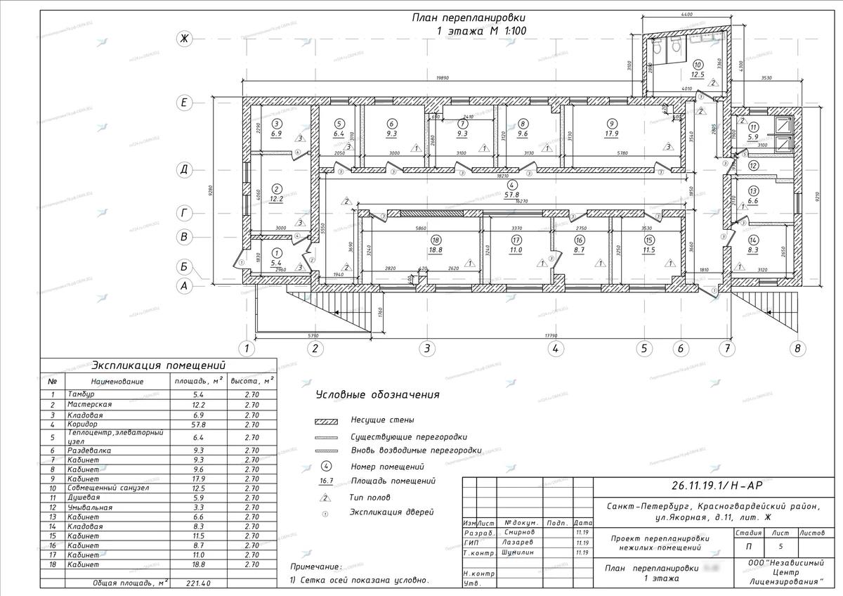
π ΠΠ±ΡΠ»Π΅Π΄ΠΎΠ²Π°Π½ΠΈΠ΅ ΠΈ ΡΠ°Π·ΡΠ°Π±ΠΎΡΠΊΠ° Π΄ΠΎΠΊΡΠΌΠ΅Π½ΡΠ°ΡΠΈΠΈ Π΄Π»Ρ ΠΠ£Π Β«Π’ΠΠ Π‘ΠΠ±Β»: ΡΠ». Π ΠΎΡΠΈΠ½ΡΠΊΠ°Ρ, 21, Π»ΠΈΡ. Π ΠΈ ΡΠ». Π―ΠΊΠΎΡΠ½Π°Ρ, 11, Π»ΠΈΡ. Π (ΠΠ°ΡΡΠΈΠ½Π°), ΠΡΠ°ΡΠ½ΠΎΠ³Π²Π°ΡΠ΄Π΅ΠΉΡΠΊΠΈΠΉ ΡΠ°ΠΉΠΎΠ½ Π‘ΠΠ±

Β«ΠΡΠΆΠ½ΠΎ Π²ΡΡ ΠΏΠΎ ΡΠ΅Π³Π»Π°ΠΌΠ΅Π½ΡΡ: ΠΎΠ±ΡΠ»Π΅Π΄ΠΎΠ²Π°Π½ΠΈΠ΅, ΠΏΡΠΎΠ΅ΠΊΡ, ΡΠ΅Ρ Π½ΠΈΡΠ΅ΡΠΊΠ°Ρ ΡΠ°ΡΡΡ β ΠΈ ΡΡΠΎΠ±Ρ ΠΏΡΠΈΠ½ΡΠ»ΠΈ Ρ ΠΏΠ΅ΡΠ²ΠΎΠ³ΠΎ ΡΠ°Π·Π°Β». ΠΡ ΠΎΡΠΎΡΠΌΠΈΠ»ΠΈ ΠΏΠ΅ΡΠ΅ΠΏΠ»Π°Π½ΠΈΡΠΎΠ²ΠΊΡ Π½Π΅ΠΆΠΈΠ»ΠΎΠ³ΠΎ ΠΏΠΎΠΌΠ΅ΡΠ΅Π½ΠΈΡ Π² ΠΡΠ°ΡΠ½ΠΎΠ³Π²Π°ΡΠ΄Π΅ΠΉΡΠΊΠΎΠΌ ΡΠ°ΠΉΠΎΠ½Π΅ β ΡΡΡΠΎΠ³ΠΎ ΠΏΠΎ ΠΏΡΠ°Π²ΠΈΠ»Π°ΠΌ, Π±Π΅Π· Π΄ΠΎΡΠ°Π±ΠΎΡΠΎΠΊ ΠΈ Π²ΠΎΠ·Π²ΡΠ°ΡΠΎΠ².
Π§ΡΠΎ Ρ ΠΎΡΠ΅Π»ΠΈ ΠΈΠ·ΠΌΠ΅Π½ΠΈΡΡ
ΠΠ»ΠΈΠ΅Π½Ρ β ΠΠΎΡΡΠ΄Π°ΡΡΡΠ²Π΅Π½Π½ΠΎΠ΅ ΡΠ½ΠΈΡΠ°ΡΠ½ΠΎΠ΅ ΠΏΡΠ΅Π΄ΠΏΡΠΈΡΡΠΈΠ΅ Β«Π’ΠΎΠΏΠ»ΠΈΠ²Π½ΠΎ-ΡΠ½Π΅ΡΠ³Π΅ΡΠΈΡΠ΅ΡΠΊΠΈΠΉ ΠΊΠΎΠΌΠΏΠ»Π΅ΠΊΡ Π‘Π°Π½ΠΊΡ-ΠΠ΅ΡΠ΅ΡΠ±ΡΡΠ³Π°Β» (ΠΠ£Π "Π’ΠΠ-Π‘ΠΠ±"). Π’ΡΠ΅Π±ΠΎΠ²Π°Π»ΠΎΡΡ ΠΎΡΠΎΡΠΌΠΈΡΡ ΡΠ°ΠΊΡΠΈΡΠ΅ΡΠΊΡΡ ΠΏΠ΅ΡΠ΅ΠΏΠ»Π°Π½ΠΈΡΠΎΠ²ΠΊΡ Π½Π΅ΠΆΠΈΠ»ΠΎΠ³ΠΎ ΠΏΠΎΠΌΠ΅ΡΠ΅Π½ΠΈΡ: ΠΏΡΠΎΠ²Π΅ΡΡΠΈ ΠΎΠ±ΡΠ»Π΅Π΄ΠΎΠ²Π°Π½ΠΈΠ΅ ΠΈ ΡΠ°Π·ΡΠ°Π±ΠΎΡΠ°ΡΡ ΠΏΡΠΎΠ΅ΠΊΡΠ½ΡΡ ΠΈ ΡΠ΅Ρ Π½ΠΈΡΠ΅ΡΠΊΡΡ Π΄ΠΎΠΊΡΠΌΠ΅Π½ΡΠ°ΡΠΈΡ Π² ΡΠΎΠΎΡΠ²Π΅ΡΡΡΠ²ΠΈΠΈ Ρ Π΄Π΅ΠΉΡΡΠ²ΡΡΡΠΈΠΌΠΈ Π½ΠΎΡΠΌΠ°ΠΌΠΈ.
ΠΡΠΎΠ±Π΅Π½Π½ΠΎΡΡΠΈ ΠΏΡΠΎΠ΅ΠΊΡΠ°
ΠΠ±ΡΠ΅ΠΊΡ β Π½Π΅ΠΆΠΈΠ»ΠΎΠ΅ ΠΏΠΎΠΌΠ΅ΡΠ΅Π½ΠΈΠ΅, Π³Π΄Π΅ Π»ΡΠ±ΡΠ΅ ΠΈΠ·ΠΌΠ΅Π½Π΅Π½ΠΈΡ Π΄ΠΎΠ»ΠΆΠ½Ρ Π±ΡΡΡ ΡΠΎΡΠ½ΠΎ Π·Π°ΡΠΈΠΊΡΠΈΡΠΎΠ²Π°Π½Ρ ΠΈ ΠΎΡΠΎΡΠΌΠ»Π΅Π½Ρ. ΠΡΠΈΠ±ΠΊΠΈ Π² Π΄ΠΎΠΊΡΠΌΠ΅Π½ΡΠ°ΡΠΈΠΈ ΠΌΠΎΠ³Π»ΠΈ ΠΏΠΎΠ²Π»Π΅ΡΡ ΡΡΡΠ°ΡΡ, Π·Π°ΠΏΡΠ΅Ρ Π½Π° ΡΠΊΡΠΏΠ»ΡΠ°ΡΠ°ΡΠΈΡ ΠΈΠ»ΠΈ Π·Π°ΡΡΠΆΠ½ΡΠ΅ ΡΠΎΠ³Π»Π°ΡΠΎΠ²Π°Π½ΠΈΡ.
Π Π·Π°Π΄Π°ΡΠΈ Π²Ρ ΠΎΠ΄ΠΈΠ»ΠΎ:
ΠΡΠΎΠ²Π΅Π΄Π΅Π½ΠΈΠ΅ ΠΎΠ±ΡΠ»Π΅Π΄ΠΎΠ²Π°Π½ΠΈΡ ΠΏΠΎΠΌΠ΅ΡΠ΅Π½ΠΈΠΉ
Π Π°Π·ΡΠ°Π±ΠΎΡΠΊΠ° ΠΏΡΠΎΠ΅ΠΊΡΠ½ΠΎΠΉ ΠΈ ΡΠ΅Ρ Π½ΠΈΡΠ΅ΡΠΊΠΎΠΉ Π΄ΠΎΠΊΡΠΌΠ΅Π½ΡΠ°ΡΠΈΠΈ
Π Π°Π±ΠΎΡΡ Π½ΡΠΆΠ½ΠΎ Π±ΡΠ»ΠΎ Π²ΡΠΏΠΎΠ»Π½ΠΈΡΡ ΡΡΡΠΎΠ³ΠΎ ΠΏΠΎ Π½ΠΎΡΠΌΠ°ΠΌ, Ρ ΡΡΡΡΠΎΠΌ ΡΠΏΠ΅ΡΠΈΡΠΈΠΊΠΈ Π½Π΅ΠΆΠΈΠ»ΠΎΠ³ΠΎ ΡΠΎΠ½Π΄Π° ΠΈ ΡΡΠ΅Π±ΠΎΠ²Π°Π½ΠΈΠΉ ΠΊ ΠΈΠ½ΠΆΠ΅Π½Π΅ΡΠ½ΡΠΌ ΡΠΈΡΡΠ΅ΠΌΠ°ΠΌ.
Π§ΡΠΎ ΠΌΡ ΡΠ΄Π΅Π»Π°Π»ΠΈ
- β’ΠΡΠΏΠΎΠ»Π½ΠΈΠ»ΠΈ Π²ΡΠ΅Π·Π΄ ΠΈ ΠΎΠ±ΡΠ»Π΅Π΄ΠΎΠ²Π°Π½ΠΈΠ΅ Ρ ΡΠΈΠΊΡΠ°ΡΠΈΠ΅ΠΉ Π²ΡΠ΅Ρ ΠΈΠ·ΠΌΠ΅Π½Π΅Π½ΠΈΠΉ
- β’Π Π°Π·ΡΠ°Π±ΠΎΡΠ°Π»ΠΈ ΠΏΡΠΎΠ΅ΠΊΡΠ½ΡΡ ΠΈ ΡΠ΅Ρ Π½ΠΈΡΠ΅ΡΠΊΡΡ Π΄ΠΎΠΊΡΠΌΠ΅Π½ΡΠ°ΡΠΈΡ
- β’ΠΠΎΠ΄Π³ΠΎΡΠΎΠ²ΠΈΠ»ΠΈ ΠΊΠΎΠΌΠΏΠ»Π΅ΠΊΡ Π΄ΠΎΠΊΡΠΌΠ΅Π½ΡΠΎΠ² Π΄Π»Ρ ΡΠΎΠ³Π»Π°ΡΠΎΠ²Π°Π½ΠΈΡ ΠΏΠ΅ΡΠ΅ΠΏΠ»Π°Π½ΠΈΡΠΎΠ²ΠΊΠΈ Π½Π΅ΠΆΠΈΠ»ΠΎΠ³ΠΎ ΠΏΠΎΠΌΠ΅ΡΠ΅Π½ΠΈΡ
Π§ΡΠΎ Π² ΠΈΡΠΎΠ³Π΅
ΠΠΎΠ»Π½ΡΠΉ ΠΊΠΎΠΌΠΏΠ»Π΅ΠΊΡ Π°ΠΊΡΡΠ°Π»ΡΠ½ΠΎΠΉ Π΄ΠΎΠΊΡΠΌΠ΅Π½ΡΠ°ΡΠΈΠΈ Π½Π° ΠΎΠ±ΡΠ΅ΠΊΡ
ΠΠΎΠ·ΠΌΠΎΠΆΠ½ΠΎΡΡΡ Π΄Π°Π»ΡΠ½Π΅ΠΉΡΠΈΡ Π΄Π΅ΠΉΡΡΠ²ΠΈΠΉ Ρ ΠΏΠΎΠΌΠ΅ΡΠ΅Π½ΠΈΠ΅ΠΌ: ΠΏΠ΅ΡΠ΅ΠΎΡΠΎΡΠΌΠ»Π΅Π½ΠΈΠ΅, ΡΠ΄Π°ΡΠ°, ΡΠ΅ΠΌΠΎΠ½Ρ
- β’ΠΡ Π·Π½Π°Π΅ΠΌ, ΠΊΠ°ΠΊ ΡΠ°Π±ΠΎΡΠ°ΡΡ Ρ Π³ΠΎΡΡΠ΅ΠΊΡΠΎΡΠΎΠΌ ΠΈ ΠΎΡΠΎΡΠΌΠ»ΡΡΡ Π΄ΠΎΠΊΡΠΌΠ΅Π½ΡΡ, ΠΊΠΎΡΠΎΡΡΠ΅ ΠΏΡΠΈΠΌΡΡ Ρ ΠΏΠ΅ΡΠ²ΠΎΠ³ΠΎ ΡΠ°Π·Π°.
ΠΡΠΆΠ΅Π½ ΠΏΡΠΎΠ΅ΠΊΡ Π΄Π»Ρ ΡΠΎΠ³Π»Π°ΡΠΎΠ²Π°Π½ΠΈΡ ΠΏΠ΅ΡΠ΅ΠΏΠ»Π°Π½ΠΈΡΠΎΠ²ΠΊΠΈ Π½Π΅ΠΆΠΈΠ»ΠΎΠ³ΠΎ ΠΏΠΎΠΌΠ΅ΡΠ΅Π½ΠΈΡ Π² ΠΡΠ°ΡΠ½ΠΎΠ³Π²Π°ΡΠ΄Π΅ΠΉΡΠΊΠΎΠΌ ΡΠ°ΠΉΠΎΠ½Π΅? Π‘ΠΎΡΡΠ°Π²ΠΈΠΌ Π²ΡΡ ΡΠΎΡΠ½ΠΎ ΠΈ Π±Π΅Π· ΠΏΡΠ°Π²ΠΎΠΊ. ΠΡΠΎΡΡΠΎ ΡΠ°ΡΡΠΊΠ°ΠΆΠΈΡΠ΅, ΡΡΠΎ ΠΈΠ·ΠΌΠ΅Π½ΠΈΠ»ΠΎΡΡ β ΠΌΡ ΠΎΡΠΎΡΠΌΠΈΠΌ.