📌 Горизонтальное объединение двух квартир с проёмом в несущей: пр. Космонавтов, 30, корп. 4, лит. А (Московский район СПб), Московский район СПб

«Купили вторую квартиру рядом — мечтали объединить в одно большое пространство». Но идея «просто сделать проём» быстро упёрлась в жёсткие требования: несущая, газ, старая панельная серия. Мы провели всё по правилам: с проектом, расчётами и регистрацией. Теперь это — один полноценный объект, без рисков и переделок.
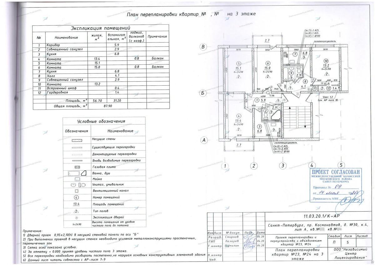
Что хотели изменить
Собственники хотели объединить две квартиры — чтобы получилась одна удобная, с нормальным зонированием и комфортом:
- •Провести горизонтальное объединение двух квартир
- •Выполнить проём в несущей стеновой панели
- •Устроить совмещённый санузел
- •Смонтировать и демонтировать перегородки
- •Закрыть старые проёмы, которые не нужны в новой планировке
- •«Мы знали, что будет сложно — но не хотели “лепить” общее пространство на авось. Нужно было по уму».
Особенности проекта
Дом: панельный, 5 этажей, 1971 года постройки
Перекрытия: железобетонные
Газоснабжение: центральное
- •️ Особые условия:
Проём в несущей — требовал раздела КР, расчётов и усиления
- •Работы с газом → обязательное соблюдение норм, учтены в проекте
- •Старый фонд → особое внимание к узлам сопряжения конструкций
Что мы сделали
- •Провели аудит и подтвердили возможность объединения
- •Разработали проект перепланировки с разделом КР (усиление несущих)
- •Согласовали с: УК, МВК Московского района, ОНД, ГАСН
- •Получили акт приёмки
- •Внесли изменения в ЕГРН как единый жилой объект
Что в итоге
Теперь вместо двух тесных квартир — один продуманный и просторный дом: со своим санузлом, безопасным проёмом и новыми перегородками. ✅ Всё оформлено официально. Можно жить, продавать или передавать по наследству без ограничений.
Хотите так же?
Планируете объединить квартиры в панельном доме в Московском районе Санкт-Петербурга?