Согласование проекта для нежилого объекта ГУП "ТЭК-СПб" на Якорной улице, дом 1 (Красногвардейском районе), Василеостровский район СПб

«Нужно согласовать изменения в помещениях ГУП точно по нормам». С таким запросом к нам обратился представитель Государственного унитарного предприятия «Топливно-энергетический комплекс Санкт-Петербурга» (ГУП "ТЭК-СПб").
Что хотели изменить
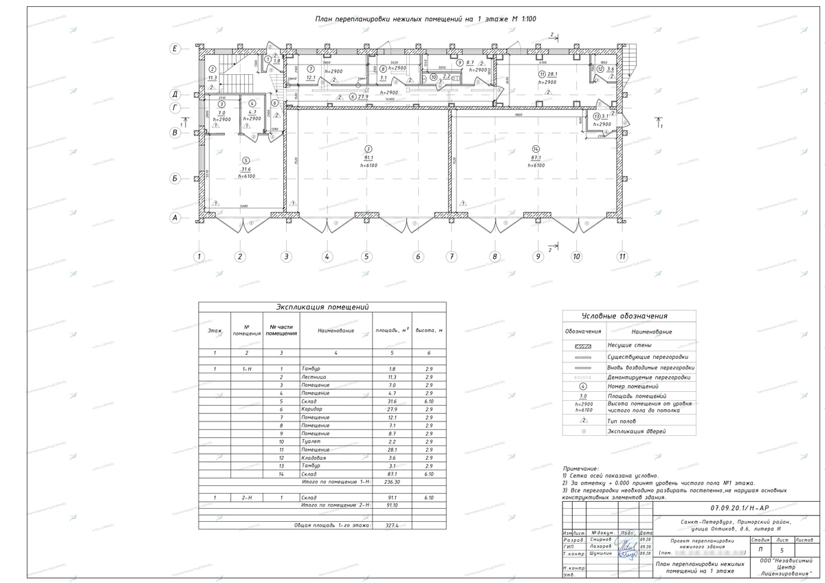
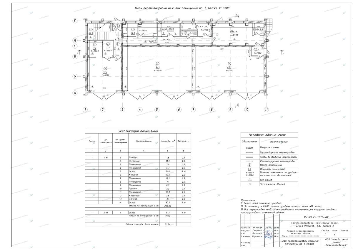
Клиент — государственная структура, ГУП "ТЭК-СПб". Требовалось провести обследование и подготовить полный пакет проектной и технической документации по фактической планировке нежилого объекта, расположенного на ул. Оптиков, 6. Важна была точность, соблюдение всех нормативов и надёжный партнёр, умеющий работать с госсектором.
Особенности проекта
Объект — нежилое помещение, находящееся в собственности и управлении городского ГУПа. Такие объекты требуют строгого соблюдения регламентов, а любая ошибка в документации может повлечь повторные согласования или замечания при приёмке.
В задачу входило:
Проведение обследования помещений
Разработка проектной и технической документации с учётом требований по безопасности, инженерным сетям и статусу объекта
Что мы сделали
- •Организовали выезд и обследование объекта с полным замером и фотофиксацией
- •Разработали проектную и техническую документацию по нормам СПб
- •Подготовили пакет документов для подачи в надзорные органы
Что в итоге
Полный комплект актуальной документации на объект
Возможность дальнейших действий с помещением: переоформление, сдача, ремонт
- •Работая с городскими структурами, важно всё сделать с первого раза. Мы оформили документы так, чтобы не возникло ни одной претензии.
Работаете с объектом в госсобственности или на балансе предприятия? Поможем согласовать перепланировку нежилой недвижимости по закону.