📌 Обследование и заключение о несущей способности: пр. Энгельса, 150, корп. 1 (Выборгский район СПб), Выборгский район СПб

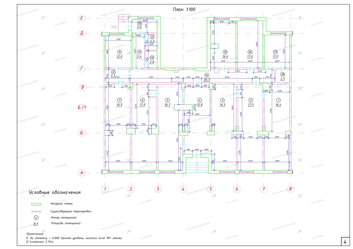
«Планировали серьёзную перепланировку — нужно было точно понять, можно ли затронуть несущие. Без таких данных двигаться дальше нельзя». Собственники обратились за техническим обследованием конструкции здания, чтобы определить возможность выполнения работ в квартире. Что было сделано Перед проектированием и перепланировкой мы: Провели обследование конструктива здания Составили заключение о несущей способности конструкций «Решили не гадать, а сразу проверить, где можно делать проёмы, а где категорически нельзя» Особенности объекта Дом: кирпичный, 1995 года постройки Перекрытия: железобетонные Газоснабжение: отсутствует (по данным домового реестра) ⚠️ Важно: Обследование — обязательная часть при планировании проёмов, демонтажа или усиления Без заключения о состоянии конструкций невозможно согласовать перепланировку с затрагиванием несущих
Что хотели изменить
- •Провели обследование конструктива здания
- •Составили заключение о несущей способности конструкций
- •«Решили не гадать, а сразу проверить, где можно делать проёмы, а где категорически нельзя»
Особенности проекта
кирпичный, 1995 года постройки
Перекрытия: железобетонные
Газоснабжение: отсутствует (по данным домового реестра)
- •️ Важно:
Обследование — обязательная часть при планировании проёмов, демонтажа или усиления
Без заключения о состоянии конструкций невозможно согласовать перепланировку с затрагиванием несущих
Что мы сделали
- •Проанализировали план и фактическое состояние конструкций
- •Выполнили инженерное обследование
- •Подготовили техническое заключение о возможности или невозможности вмешательства в несущие элементы
Что в итоге
Теперь у собственников есть официальный документ — база для безопасного проекта перепланировки. ✅ Можно разрабатывать проект, делать проёмы или усиления — зная, что и где допустимо.
Хотите так же?
Планируете проём в несущей или сложную перепланировку? Начните с обследования. Мы проверим конструктив, составим заключение и подскажем, как действовать. Напишите — оценим дом и риски заранее.