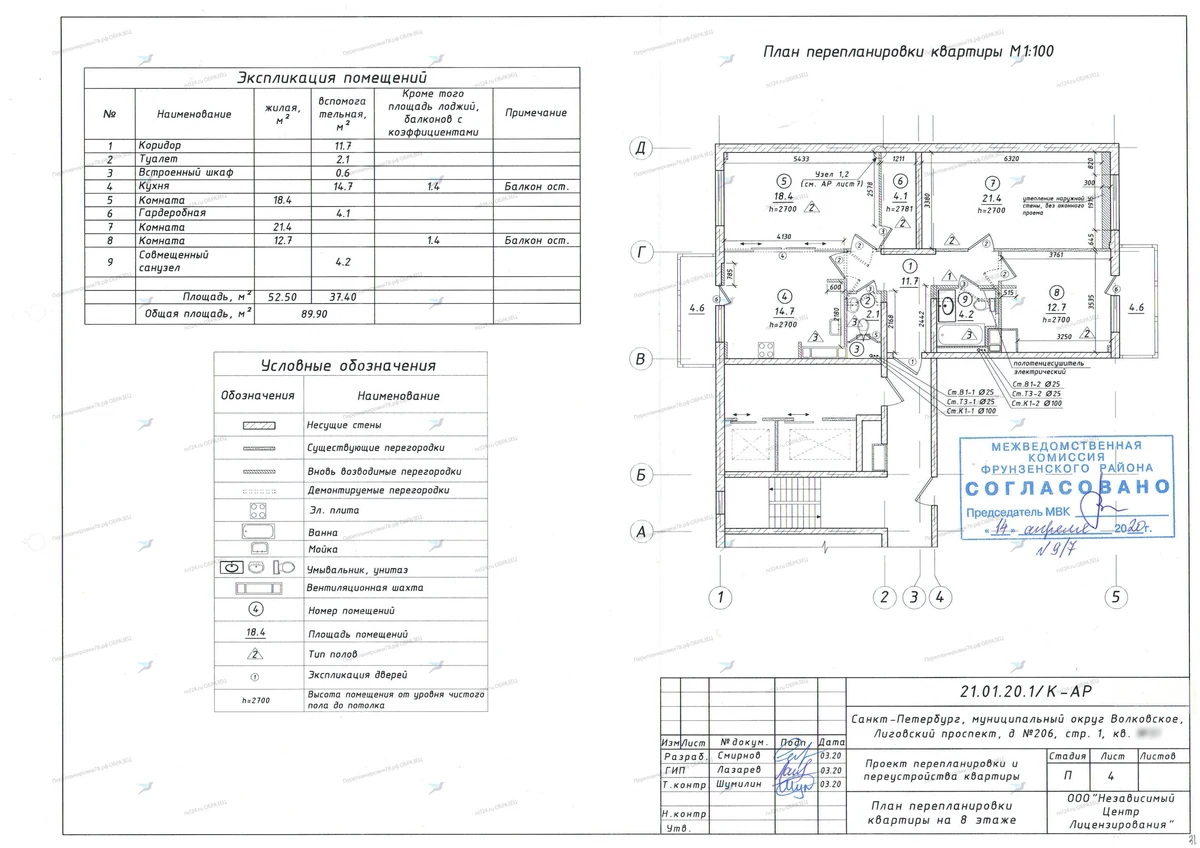
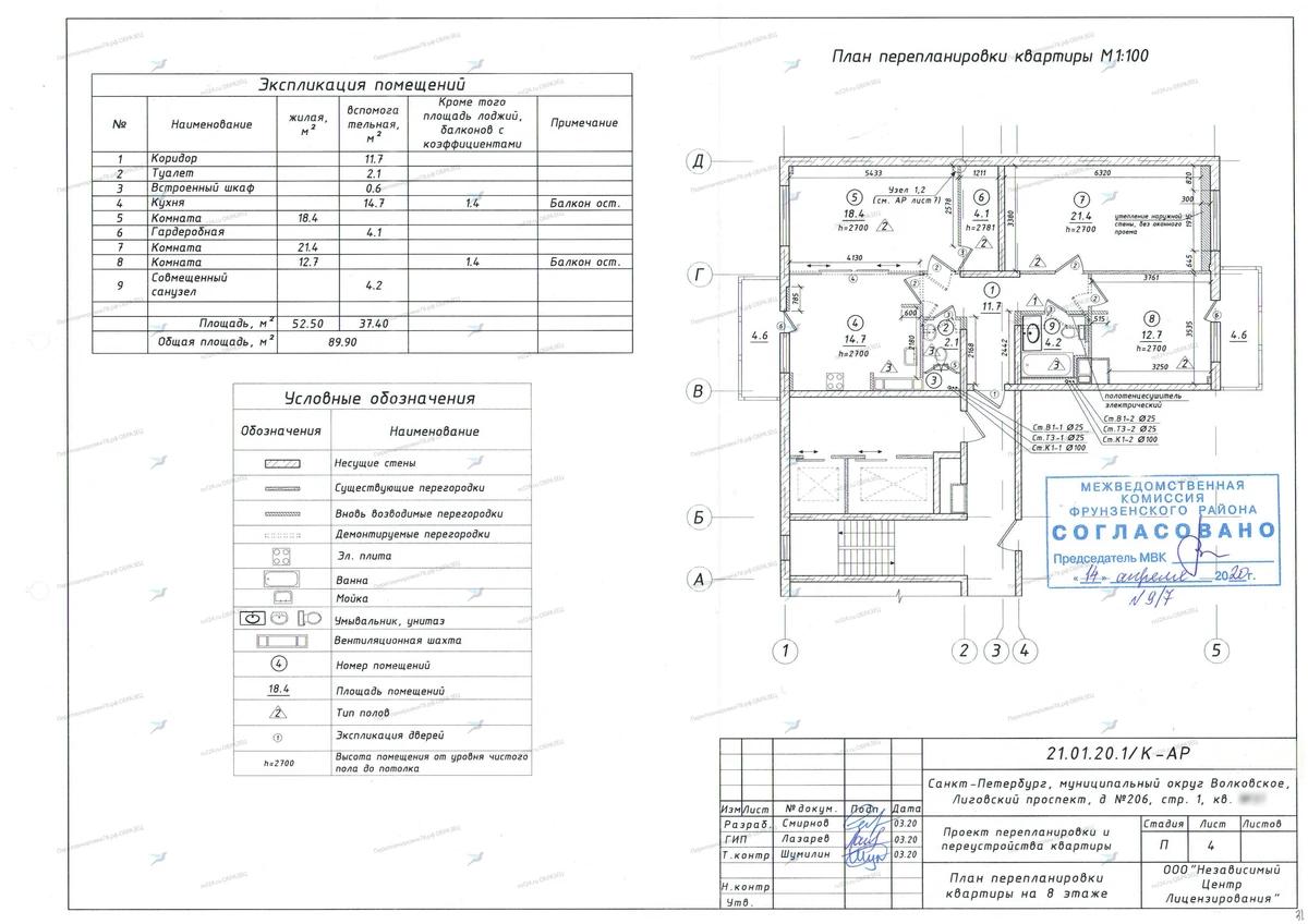
📌 Согласование перепланировки с расширением санузла и демонтажом перегородки: Лиговский пр., 206, стр. 1 (Фрунзенский район СПб), Фрунзенский район СПб

«Хотелось больше воздуха и удобства — особенно в санузле и кухне». С таким запросом к нам обратился собственник квартиры в современном доме на Лиговском проспекте. Он знал: любые работы с мокрыми зонами и перегородками — только по проекту. Мы помогли оформить всё официально.
Что хотели изменить
Клиент заранее уточнил, что изменения будут затрагивать несущие и мокрые зоны, поэтому запрос был: «всё под ключ, чтобы не переделывать потом»:
- •Увеличение санузла за счёт площади коридора
- •Демонтаж перегородки между кухней и комнатой с установкой раздвижной двери
- •Утепление наружной стены (без оконного проёма) в жилой комнате.
- •Риски были связаны с согласованием демонтажа и инженерных работ. Важно было пройти все инстанции — и оформить в ЕГРН.
Особенности проекта
Дом: кирпично-монолитный, 10 этажей, 2018 года постройки
Перекрытия: железобетонные
Газоснабжение: отсутствует 🛠️ Технические особенности:
- •Расширение мокрой зоны → потребовало расчётов по нормативам
- •Утепление стены без оконного проёма → требовало отдельной проработки в проекте
Все работы прошли проверку на МВК Фрунзенского района
Что мы сделали
- •Аудировали документы и провели первичную экспертизу допустимости работ
- •Разработали проект перепланировки с учётом демонтажа перегородок и утепления
Согласовали проект с:
- •УК
- •ОНД
- •МВК Фрунзенского района
- •Получили акт приёмки
- •Внесли изменения в ЕГРН
Что в итоге
Теперь квартира стала комфортнее: просторный санузел, светлая кухня-гостиная, тёплая зона у внешней стены. ✅ Все изменения оформлены официально и зафиксированы в реестре. Квартира готова к продаже или спокойному проживанию.
Хотите так же?
Планируете перепланировку с демонтажом перегородки и расширением санузла в доме на Лиговском проспекте во Фрунзенском районе СПб?