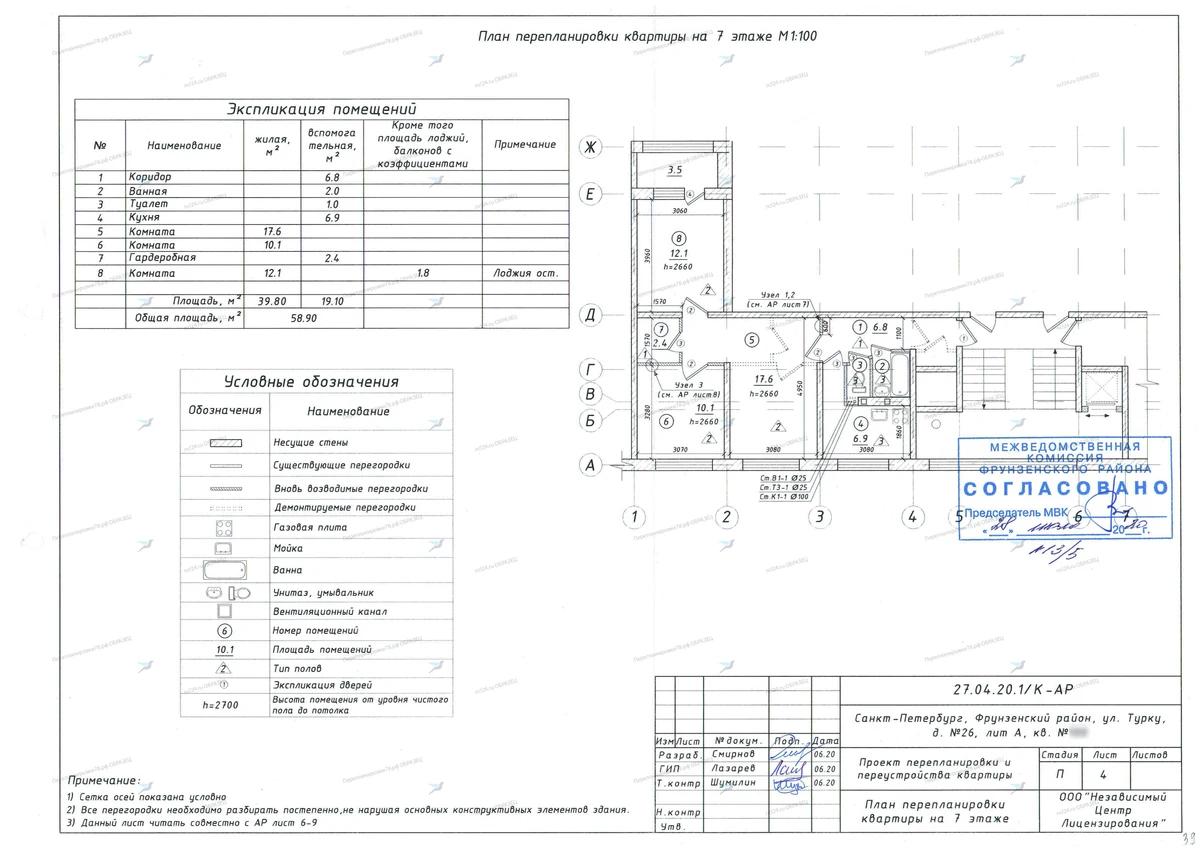
📌 Перепланировка с переносом проёмов и увеличением комнаты: улица Турку, литера А, дома 26, Фрунзенский район СПб

«Комната вроде большая, но всё съедено коридорами и неудобными дверями. Хотелось свободы». С таким описанием к нам пришли собственники квартиры в кирпичном доме на улице Турку. Они заранее понимали: всё, что связано с переносом проёмов и сантехникой — требует проекта. Мы провели перепланировку от замысла до ЕГРН.
Что хотели изменить
- •Цель — вернуть пространствоПеренести дверной проём в коридоре
- •Изменить расстановку сантехники с подключением к существующим стоякам
- •Увеличить комнату за счёт части площади коридора
- •Сместить дверной проём (чётко зафиксировать в техплане)
- •«Не хотели “по-тихому”. Лучше сразу оформить, чтобы потом не бегать»
Особенности проекта
Дом: кирпичный, 16 этажей, 2007 года постройкижелезобетонныеотсутствует
- •️Смещение и перенос проёмов → требует согласования даже внутри квартиры
- •Новая сантехника → техусловия и корректное подключение
Что мы сделали
- •Провели аудит планировки и подтвердили допустимость всех изменений
- •Подготовили проект с учетом нормативов на дверные проёмы и инженерные сетиУК
- •МВК Фрунзенского района
- •ОНД
- •Получили акт приёмки
- •Внесли изменения в ЕГРН
Что в итоге
Теперь в квартире — логичная планировка, больше света и пространства. Всё зафиксировано официально, никаких рисков при сделках. ✅ Документы оформлены, квартира готова к жизни или продаже.
Хотите так же?
Планируете увеличить комнату или изменить проёмы в квартире на улице Турку во Фрунзенском районе? Оформим грамотно — с проектом, согласованием и регистрацией в ЕГРН. Просто напишите — покажем маршрут.

