Согласование перепланировки с переносом проемов и заменой оконно-дверного блока на Лиговском проспекте, 271 (Фрунзенский район), Фрунзенский район СПб

«Нужно обследовать объект и подготовить техническую документацию для согласования перепланировки ГУПа. Никаких доработок, только по регламенту». С таким запросом к нам обратился представитель ГУП "ТЭК-СПб". Мы провели обследование и подготовили все документы по требованиям города.
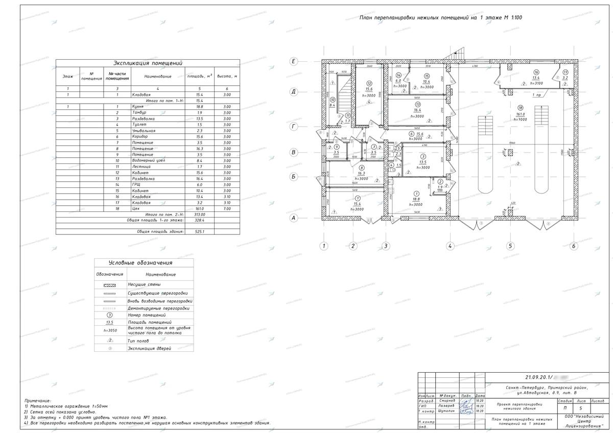
Что хотели изменить
Объект — нежилое помещение, принадлежащее Государственному унитарному предприятию «Топливно-энергетический комплекс Санкт-Петербурга». Задача:
- •провести обследование помещения разработать техническую документацию, соответствующую действующим требованиям к учёту и эксплуатации.
- •Все работы проводились в рамках обязательной подготовки к постановке на учёт и вводу в эксплуатацию.
Особенности проекта
Помещение относилось к нежилому фонду, с техническими особенностями, требующими соблюдения:
- •норм обследования конструкций требований к планировочной документации стандартов, предъявляемых к помещениям ГУПов.
Что мы сделали
- •Провели аудит исходных документов и обследование помещения
- •Подготовили техническую документацию по требованиям для нежилых объектов
- •Оформление выполнено строго по регламенту без замечаний
Что в итоге
ГУП "ТЭК-СПб" получил полный пакет технической документации. Объект готов к постановке на учёт или подаче на ввод в эксплуатацию.
- •Документы оформлены строго в рамках нормативных требований Санкт-Петербурга.
Хотите так же?
Нужно обследование и техническая документация для согласования перепланировки нежилого помещения в Санкт-Петербурге? Подготовим всё без доработок — по регламенту и с учётом ваших сроков. Просто напишите или позвоните нам по контактам на сайте.