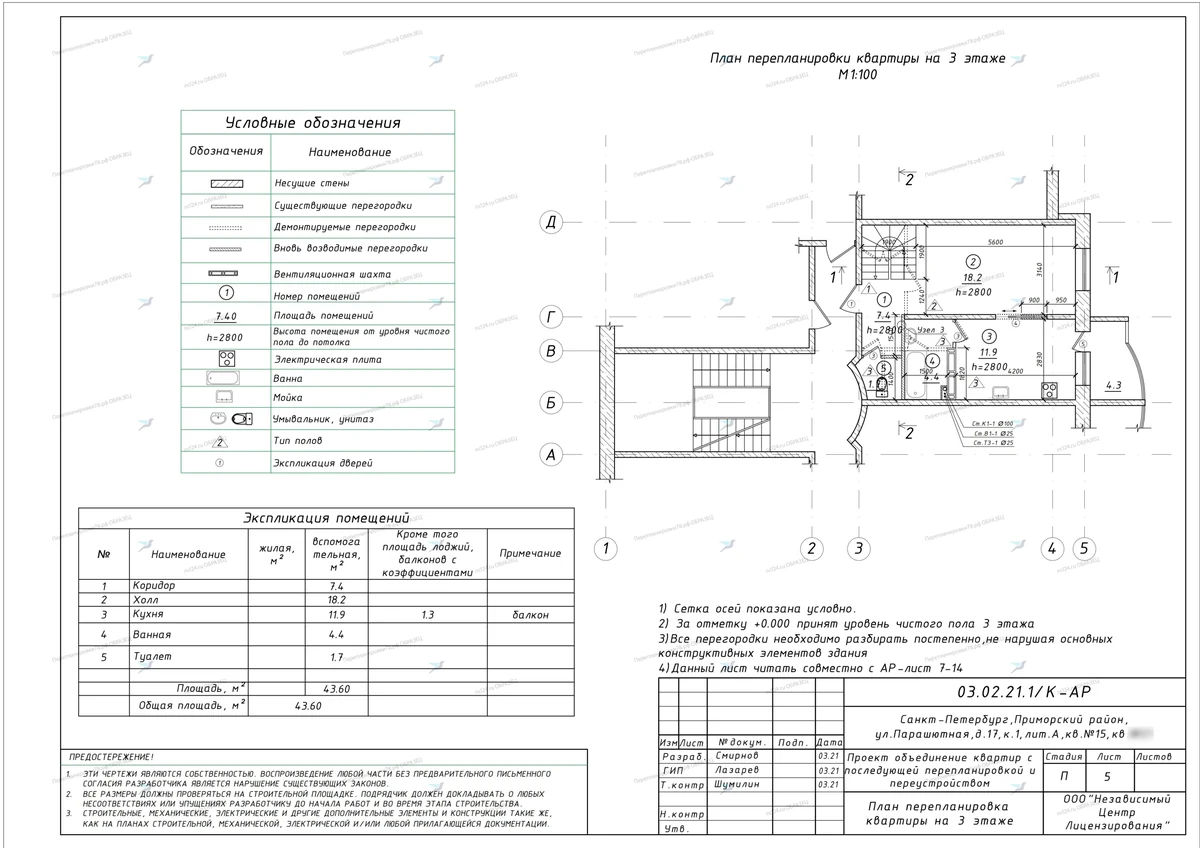
Перепланировка со встроенным шкафом и разделением санузла: Малая Бухарестская, 12, стр. 1 (Фрунзенский район СПб), Фрунзенский район СПб

Заказчик обратился заранее: "Ничего пока не сносили, но хотим всё изменить по уму". Мы взяли на себя проектирование, чтобы потом не пришлось переделывать. Такой подход экономит и нервы, и месяцы согласований.
Что хотели изменить
Клиент только планировал ремонт. Чётко понимал, что любой перенос стен, проёмов, стояков или сантехники — это уже перепланировка и переустройство. А значит — нужен проект. Мы подключились на старте, чтобы заложить безопасную и допустимую схему изменений.
Особенности проекта
Дом — 2000 года постройки, газа нет, кирпичный, железобетонные перекрытия. Такие дома часто дают свободу, но только если заранее известны технические ограничения:
- •какие перегородки можно снести без ущерба для безопасности МКД где проходят стояки какие стены несущие и нужно ли получать техусловия.
Что мы сделали
- •Провели аудит документов на старте и сразу определили возможность согласования перепланировки
- •Разработали проект перепланировки с учётом пожеланий клиента и нормативов
- •Подготовили документацию для подачи на согласование в УК и МВК Приморского района
Что в итоге
Теперь у клиента есть утверждённый проект, с которым можно спокойно начинать ремонт — без риска, что потом придётся «откатывать назад».
- •Грамотно разработанный проект — это первый шаг к быстрому и чистому согласованию.
Хотите так же?
Только планируете перепланировку в квартире в Приморском районе? Обратитесь до ремонта — и мы разработаем проект, который согласуют с первого раза.