Все проекты портфолио

Калининский

Мы согласовали: 12 проектоврайон СПб

Примеры выполненных проектов перепланировки и переустройства квартир в Калининский районе Санкт-Петербурга. Все проекты согласованы в установленном порядке.

О Калининский районе

Что важно знать перед перепланировкой

Используем данные из кейсов НЦП24 и регламентов районных администраций, чтобы учесть все нюансы согласования.

Общая характеристика
Район на правом берегу Невы, предлагающий баланс между жилой средой и инфраструктурой.
Типичные планировки
"Сталинки" и старый фонд на юге; "хрущёвки", "брежневки", панельные дома (137-я, 504-я серии) на севере. Новые ЖК — функциональные планировки.
Особенности перепланировки
В советских домах планировки не всегда удобны. В панельных домах типовых серий перепланировка возможна по готовым проектам. В "сталинках" сложнее.
Что чаще всего делаем
Чаще всего делают увеличение санузла, объединение кухни с гостиной (если электрическая плита), создание более просторных комнат.

Поиск по адресу

📌 Согласование перепланировки с разделением смежных комнат: пр. Науки, 3 (Калининский район СПб)
Адрес
пр. Науки, дом 3
Район
Калининский район СПб

📌 Согласование перепланировки с разделением смежных комнат: пр. Науки, 3 (Калининский район СПб)

  • Что хотели изменить Планировка по типовой серии I-335-I не устраивала: проходные комнаты и узкое пространство
  • В проект вошло: • Увеличение площади коридора за счёт части комнаты; • Разделение смежных комнат; • Согласование с УК, МВК и ОНД
  • Особенности проекта Дом 1964 года, панельный, 5 этажей, серия I-335-I
📌 Перепланировка с объединением санузла и увеличением кухни: ул. Маршала Тухачевского, 23, стр. 1 (МО Полюстрово, Красногвардейский район СПб)
Адрес
МО Полюстрово, ул. Маршала Тухачевского, д.23, стр.1
Район
Калининский район СПб

📌 Перепланировка с объединением санузла и увеличением кухни: ул. Маршала Тухачевского, 23, стр. 1 (МО Полюстрово, Красногвардейский район СПб)

  • Что хотели изменить Планировка была типовой и неудобной
  • Хозяин хотел оптимизировать каждый метр: • Объединить и расширить санузел, захватив площадь кладовой и коридора • Изменить расстановку сантехнического оборудования • Увеличить кухню за счёт части коридора • 💬 «Дом современный, но планировка не под нашу жизнь
  • Решили — меняем, но с оформлением» Особенности проекта Дом: монолитно-кирпичный, 16 этажей, 2017 года постройки Перекрытия: железобетонные Газоснабжение: не указано, но обычно отсутствует в таких домах ⚠️ Ключевые моменты: Санузел + сантехника → потребовали чёткого проектирования и фиксации Изменение кухонной зоны → всё оформлялось с внесением в поэтажный план Что мы сделали • Оценили план и подтвердили возможность всех изменений • Подготовили проект перепланировки Согласовали с: • УК • МВК Красногвардейского района • Получили акт ввода в эксплуатацию • Внесли изменения в ЕГРН Что в итоге Квартира теперь полностью под нужды семьи: просторная кухня, удобный санузел, никаких “мертвых зон”
📌 Согласование перепланировки с увеличением кухни и совмещённым санузлом: ул. Маршала Тухачевского, 23, стр. 1 (Калининский район СПб)
Адрес
ул. Маршала Тухачевского, дом 23, стр. 1
Район
Калининский район СПб

📌 Согласование перепланировки с увеличением кухни и совмещённым санузлом: ул. Маршала Тухачевского, 23, стр. 1 (Калининский район СПб)

  • Что хотели изменить Клиенты стремились переделать стандартную, «коридорную» планировку под свои привычки и быт
  • В проект вошли: • Устройство совмещённого санузла; • Перенос сантехники с подключением к существующим стоякам ГВС/ХВС и канализации; • Увеличение площади кухни за счёт части коридора; • Устройство перегородки между кухней и гостиной; • Согласование с УК, МВК, ОНД
  • Все изменения были реализованы по правилам и оформлены в ЕГРН
📌 Согласование перепланировки с проёмом в несущей и душевой зоной: Кушелевская дорога, 5, корп. 2, лит. А (Калининский район СПб)
Адрес
Кушелевская дорога, дом 5, корп. 2, лит. А
Район
Калининский район СПб

📌 Согласование перепланировки с проёмом в несущей и душевой зоной: Кушелевская дорога, 5, корп. 2, лит. А (Калининский район СПб)

  • Что хотели изменить Клиент хотел современную планировку с открытым душем и удобным проходом между кухней и комнатой
  • Работы включали: • Устройство дверного проёма в несущей стене между кухней и комнатой; • Замена душевого поддона на трап с душевой лейкой и подключением к стоякам; • Зашивка инженерных коммуникаций в короб с доступом в санузле; • Проект с разделом КР по усилению конструкции; • Получение технических условий по инженерным системам; • Согласование с УК, МВК, ГАСН, ОНД
  • Особенности проекта Дом 2016 года, монолитный, 25 этажей
📌 Согласование перепланировки с объединением кухни и гостиной: пр. Металлистов, 117, стр. 1 (Калининский район СПб)
Адрес
пр. Металлистов, дом 117, стр. 1
Район
Калининский район СПб

📌 Согласование перепланировки с объединением кухни и гостиной: пр. Металлистов, 117, стр. 1 (Калининский район СПб)

  • Что хотели изменить Клиент заранее понимал: трогать мокрые зоны или объединять помещения — только по проекту и с допуском от МВК
  • Поэтому обратился сразу за официальным оформлением
  • Согласование перепланировки по объединению кухни и гостиной; • Изменение расстановки сантехнического оборудования с подключением к стоякам ГВС/ХВС и канализации; • Получение технических условий по инженерным коммуникациям; • Согласование с УК и МВК
Перепланировка с объединением санузла и встроенными шкафами: ул. Есенина, 1, корп. 2 (Калининский район СПб)
Адрес
ул. Бухарестская, дом 122, к. 1
Район
Калининский район СПб

Перепланировка с объединением санузла и встроенными шкафами: ул. Есенина, 1, корп. 2 (Калининский район СПб)

  • Что хотели изменить • Клиенты пришли с продуманной идеей: расширить коридор за счёт площади кухни • пробить дверной проём в несущей панельной стене и установить раздвижную дверь • перенести сантехнику с подключением к существующим стоякам горячей, холодной воды и канализации
  • И — да, согласовать перепланировку квартиры во Фрунзенском районе Санкт-Петербурга официально
  • Не «договориться», не «на удачу», а по закону, чтобы потом спокойно жить или продавать
Перепланировка с демонтажом перегородок и устройством гардероба: ул. Грибалёвой, 7, корп. 3, стр. 1 (Сампсониевское МО, Выборгский район СПб)
Адрес
Науки пр., дом 30, корпус 1, лит. А
Район
Калининский район СПб

Перепланировка с демонтажом перегородок и устройством гардероба: ул. Грибалёвой, 7, корп. 3, стр. 1 (Сампсониевское МО, Выборгский район СПб)

  • Что хотели изменить Клиенты решили не откладывать и сразу оформить перепланировку «под ключ»
  • В задачи входило: • Объединение и увеличение санузла за счёт коридора • Смещение дверного проёма между комнатой и коридором • Замена и перенос сантехнических приборов в санузле и на кухне с подключением к существующим стоякам горячей и холодной воды, а также канализации • Получение технических условий по инженерным системам • Согласование с УК, МВК, ОНД и регистрация перепланировки в ЕГРН
  • Поскольку затрагивались мокрые зоны и был газ — всё нужно было сделать строго по проекту, с соблюдением норм безопасности
📌 Согласование перепланировки с объединением санузла и переносом сантехники: пр. Науки, 30, к.1, лит. А (Калининский район СПб)
Адрес
Московский пр., дом 183-185, литера А
Район
Калининский район СПб

📌 Согласование перепланировки с объединением санузла и переносом сантехники: пр. Науки, 30, к.1, лит. А (Калининский район СПб)

  • Что хотели изменить Клиенты заранее обратились к нам, чтобы сделать всё по правилам: увеличение площади коридора за счёт части комнаты и кухни; установка сантехнического оборудования с подключением к существующим стоякам горячей, холодной воды и канализации
  • Они понимали: любые действия с мокрыми зонами требуют технических условий и проектной документации
  • Особенно — в доме бизнес-класса
Как узаконили уже сделанную перепланировку: Кушелевская дорога, дом 3, корпус 2 (Калининский район СПб)
Адрес
Кушелевская дорога, дом 3, корпус 2
Район
Калининский район СПб

Как узаконили уже сделанную перепланировку: Кушелевская дорога, дом 3, корпус 2 (Калининский район СПб)

  • Что хотели изменить Клиенты обратились до начала работ — чтобы согласовать: • объединение двух санузлов в один совмещённый • расстановку сантехнического оборудования • демонтаж двери на кухню
  • Задача — сделать современную и удобную планировку без риска отказа от МВК и управляющей компании
  • Особенности проекта Дом 2014 года постройки, панельный, 20 этажей, с железобетонными перекрытиями, расположен в Калининском районе Санкт-Петербурга
Перепланировка с объединением санузлов и демонтажом двери: Кушелевская дорога, 3, корп. 2 (Калининский район СПб)
Адрес
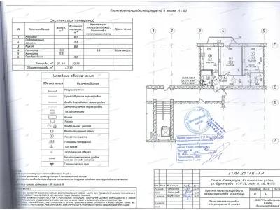
ул. Бутлерова, дом 32, лит. А
Район
Калининский район СПб

Перепланировка с объединением санузлов и демонтажом двери: Кушелевская дорога, 3, корп. 2 (Калининский район СПб)

  • Что хотели изменить Собственники обратились за полным сопровождением согласования для следующих работ: • объединение санузла • демонтаж перегородки между комнатой и коридором • устройство гардеробной на площади комнаты • замена входной деревянной двери на стальную
  • Всё это нужно было оформить официально, чтобы не возникло проблем с УК, сделками или при перепланировке в будущем
  • Особенности проекта Дом 1964 года постройки, кирпичный, с железобетонными перекрытиями и центральным газом
Перепланировка с объединением санузла и гардеробной: ул. Бутлерова, 32 (Калининский район СПб)
Адрес
Муринское городское поселение, г. Мурино, Воронцовский бульвар, дом № 17
Район
Калининский район СПб

Перепланировка с объединением санузла и гардеробной: ул. Бутлерова, 32 (Калининский район СПб)

  • Что хотели изменить Клиенты обратились к нам на старте — мы разработали проект, который можно сразу подавать в УК и МВК
  • Что хотели изменить Обращение было на этапе планирования ремонта
  • Заказчики понимали: даже если в доме нет газа, любые изменения — особенно с мокрыми зонами или стенами — нужно оформлять официально
Как узаконили уже сделанную перепланировку в доме 2018 года: Ленинградская область, Всеволожский муниципальный район, 8.30 Муринское городское поселение, г. Мурино, Воронцовский бульвар, дом № 17
Адрес
г. Мурино, Воронцовский бульвар, дом 17
Район
Калининский район СПб

Как узаконили уже сделанную перепланировку в доме 2018 года: Ленинградская область, Всеволожский муниципальный район, 8.30 Муринское городское поселение, г. Мурино, Воронцовский бульвар, дом № 17

  • Что хотели изменить • Обращение было на этапе планирования ремонта
  • Заказчики понимали: даже если в доме нет газа, любые изменения — особенно с мокрыми зонами или стенами — нужно оформлять официально
  • Их цель — получить проект, с которым потом не будет проблем при согласовании или регистрации в ЕГРН

Планируете перепланировку в Калининский?

Получите бесплатную консультацию по согласованию перепланировки в вашем районе. Знаем все особенности работы с местными администрациями.