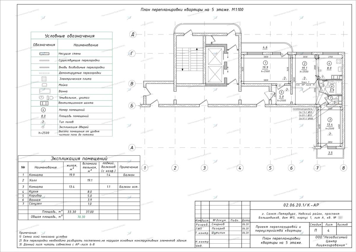
📌 Переобмер и ввод в эксплуатацию после перепланировки: проспект Большевиков, дом 9, корпус 3, литера Э, Невский район СПб

"«Работы завершили давно, но в документах — старые данные. Нужно было официально зафиксировать всё, что есть по факту». Клиенты обратились к нам за вводом объекта в эксплуатацию после выполненной перепланировки."
Что хотели изменить
- •Цель — привести техпаспорт
- •Провели переобмер квартиры после перепланировки
- •Подготовили пакет документов для ввода объекта в эксплуатацию
- •«Сделали ремонт, всё красиво. Осталось — оформить официально. Не хотелось, чтобы подвисло»
Особенности проекта
Дом: панельный, серия 1‑ЛГ‑504Д‑10, 1972железобетонные
Газоснабжение:
- •Дом с газом → изменения должны быть корректно отражены в проекте
- •Серия 504Д‑10 → типовые ограничения и нормы
Что мы сделали
- •Провели актуальный обмер квартиры
- •Подготовили комплект технической документации
- •Сопровождали подачу на ввод в эксплуатацию
- •Внесли сведения о перепланировке в ЕГРН
Что в итоге
по плану, по факту, по реестру. ✅ Документы оформлены. Можно продавать, сдавать или просто жить спокойно.
Хотите так же?
Уже сделали перепланировку, но не оформили изменения?
Проведём переобмер, подготовим документы и официально введём объект в эксплуатацию. Без повторных подач и отказов. Напишите — подскажем, с чего начать.

