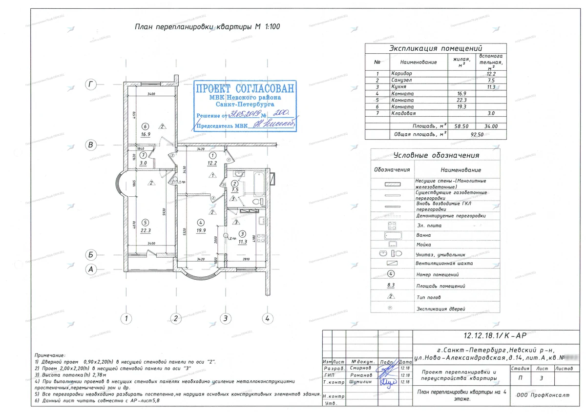
📌 Сложная перепланировка с проёмами в несущих: ул. Ново-Александровская, 14, лит. А (Невский район СПб), Невский район СПб

«Дом монолитный, хотелось всё сделать красиво — но понимали, что с несущими нужно по закону». Клиенты обратились к нам с комплексным запросом: объединение санузла, проёмы в несущих, переделка гардеробной и зонирование комнат. Важно было пройти все согласования без возвратов.
Что хотели изменить
- •Объединить санузел и расширить его за счёт площади коридора
- •Устроить проём 2,00×2,20 м в несущей стене между кухней и комнатой
- •Устроить дверной проём 0,90×2,20 м между комнатой и коридором (тоже в несущей)
- •Демонтировать гардеробную
- •Разделить смежные комнаты, чтобы у каждого было своё пространство
- •«Хотели и удобно, и безопасно — чтобы ни одна инстанция не вернула проект»
Особенности проекта
Дом: монолитный, 2010 года постройки
Перекрытия: железобетонные плиты
Газоснабжение: отсутствует (по паспорту дома)
- •️ Особенности:
- •Работы с несущими конструкциями → проект с разделом КР и расчётами усиления
- •Несколько проёмов → согласование с МВК, ГАСН, ОНД, обязательный контроль безопасности
Что мы сделали
- •Подтвердили возможность всех изменений после анализа конструктивной схемы
- •Разработали проект перепланировки с разделом КР (усиление несущих)
Согласовали с:
- •УК
- •МВК Невского района
- •ОНД
- •ГАСН
- •Получили акт приёмки
- •Зарегистрировали перепланировку в ЕГРН
Что в итоге
Квартира стала просторной, логично зонированной, безопасной — и при этом юридически чистой. ✅ Все изменения зафиксированы. Можно жить, продавать, сдавать — без риска.
Хотите так же?
Хотите сделать проём в несущей стене или объединить санузел?
Покажем, как оформить грамотно: от проекта с усилением до регистрации в ЕГРН. Без затягивания и возвратов. Напишите — пройдём путь вместе.