📌 Согласование перепланировки с проёмом в несущей и объединением санузла: ул. Евдокима Огнева, 12, корп. 1, лит. 3 (Невский район СПб), Невский район СПб

«Квартира старая, стены толстые, всё не по-людски — хочется простора, света, нормального санузла…» — с такими словами к нам пришли новые владельцы квартиры в доме серии 1ЛГ-602. Они хотели переделать всё — и сделать это по закону. Мы взяли на себя проект, расчёты и согласование с десятком инстанций. Сделали всё грамотно — и помогли превратить типовую «панель» в функциональное современное пространство.
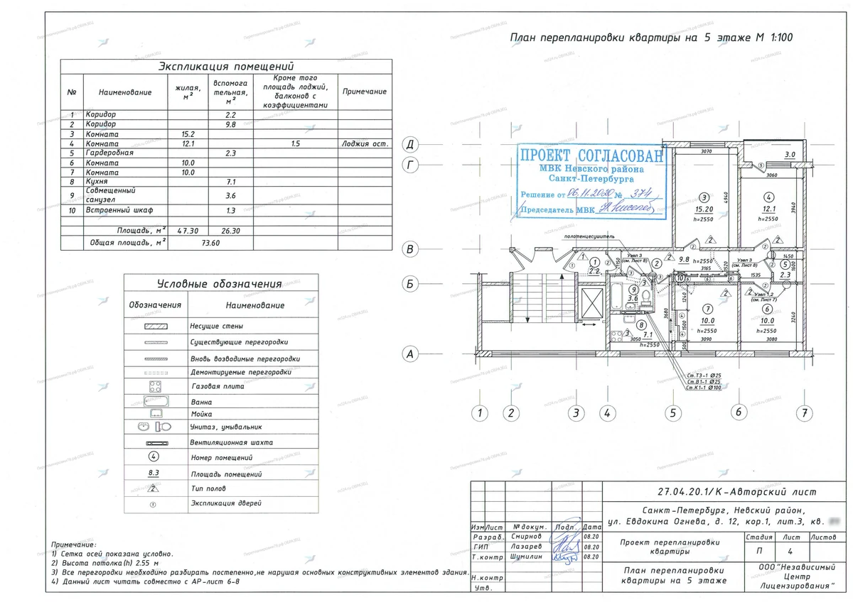
Что хотели изменить
Проект был масштабным — и затрагивал и несущие стены, и мокрые зоны:
- •Проём в несущей стене между кухней и комнатой с установкой раздвижных дверей; • Объединение санузла и его расширение за счёт коридора; • Увеличение площади кухни за счёт части коридора; • Разработка проекта с разделом КР по усилению конструкции; • Получение технических условий; • Согласование с УК, МВК, ГАСН, ОНД.
Особенности проекта
Дом панельный, серия 1ЛГ-602, построен в 1970 году. 9 этажей, газ — центральный. Перекрытия — железобетонные. Район — Невский.
- •Ключевые сложности: • Проём в несущей стене требует раздела КР, усиления и расчётов; • Газ в доме → жёсткие требования к вентиляции и изоляции; • Изменения затрагивали сразу три функциональные зоны квартиры (кухня, санузел, коридор).
Что мы сделали
Разработали проект с усилением и новой конфигурацией помещений Получили технические условия по инженерии Согласовали перепланировку с УК, МВК, ГАСН, ОНД Организовали ввод объекта и регистрацию изменений в ЕГРН
Что в итоге
Теперь квартира полностью переделана и оформлена. Всё согласовано официально, и каждый метр — на законных основаниях.
Хотите так же?
Хотите сделать проём в несущей или объединить санузел — как на ул. Евдокима Огнева, 12? Мы оформим всё строго по правилам — от проекта с разделом КР до ЕГРН. Пишите — обсудим задачу.