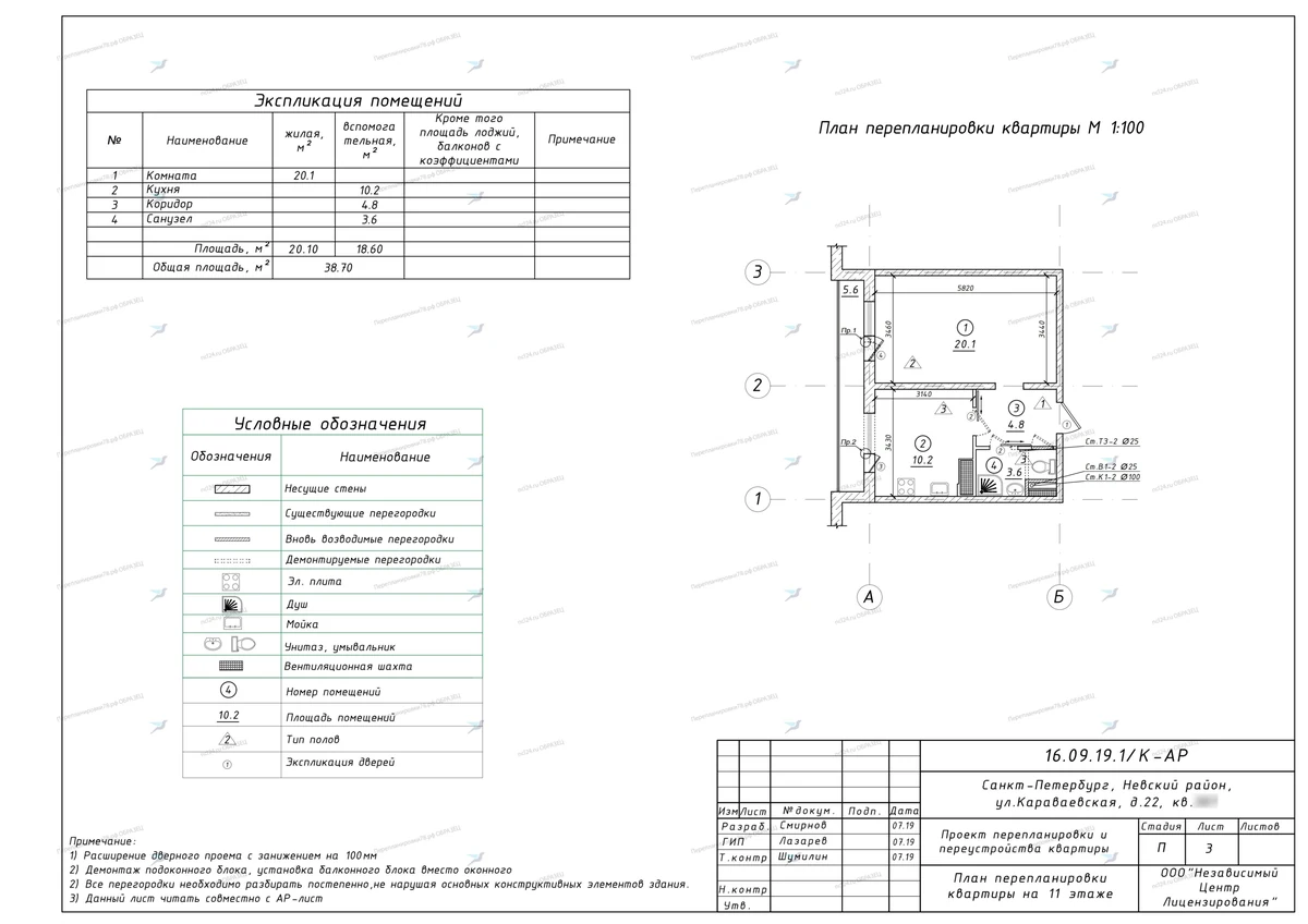
📌 Подготовка проекта перепланировки: ул. Караваевская, 22 (Невский район СПб), Невский район СПб

«Хотим перепланировать, но по правилам — чтобы потом без проблем» — с таким намерением к нам обратились собственники квартиры на Караваевской улице. На момент обращения ремонт ещё не начался. Это тот самый случай, когда клиент решил действовать грамотно с самого начала: сначала проект — потом согласование. Что хотели сделать Клиент планировал обновить внутреннюю планировку и нуждался в официальном проекте перепланировки. Мы подключились на этапе подготовки: • Разработали проект перепланировки. Это базовый, но ключевой шаг: проект станет основой для согласования в МВК, УК и, в будущем, ввода в эксплуатацию.
Что хотели изменить
Клиент планировал обновить внутреннюю планировку и нуждался в официальном проекте перепланировки. Мы подключились на этапе подготовки:
- •Разработали проект перепланировки.
Это базовый, но ключевой шаг: проект станет основой для согласования в МВК, УК и, в будущем, ввода в эксплуатацию.
Особенности проекта
Дом 1988 года, панельный, 16 этажей, 7 подъездов. Перекрытия — железобетонные, газоснабжения нет. Мусоропровод отсутствует. Район — Рыбацкое, Невский.
Ключевые особенности: • Типовая серия — есть ограничения по несущим стенам и вентиляции; • Отсутствие газа упрощает часть требований к кухне и техусловиям; • Дом без мусоропровода — расширяет возможности зонирования.
Что мы сделали
Провели замеры квартиры и анализ исходной документации Разработали архитектурный раздел проекта с учётом планируемых изменений Подготовили комплект документов для подачи в УК и МВК
Что в итоге
Готовый проект на руках у собственника. Он может спокойно идти на согласование, зная, что всё подготовлено с учётом норм и требований дома.
Хотите так же?
Хотите начать перепланировку с проекта — как на ул. Караваевской, 22 в Невском районе? Мы подготовим его быстро и грамотно. Просто напишите или позвоните нам — обсудим задачу и запустим процесс.