Согласование перепланировки для нежилого объекта ГУП "ТЭК-СПб" на ул. Оптиков, дом 6 (Приморский район), Выборгский район СПб

«Сомневались, можно ли объединить кухню с комнатой. А вдруг потом запретят?» — с таким вопросом к нам пришёл собственник квартиры. Мы не просто ответили «можно»: мы оформили всё официально — с проектом, согласованиями и актом МВК.
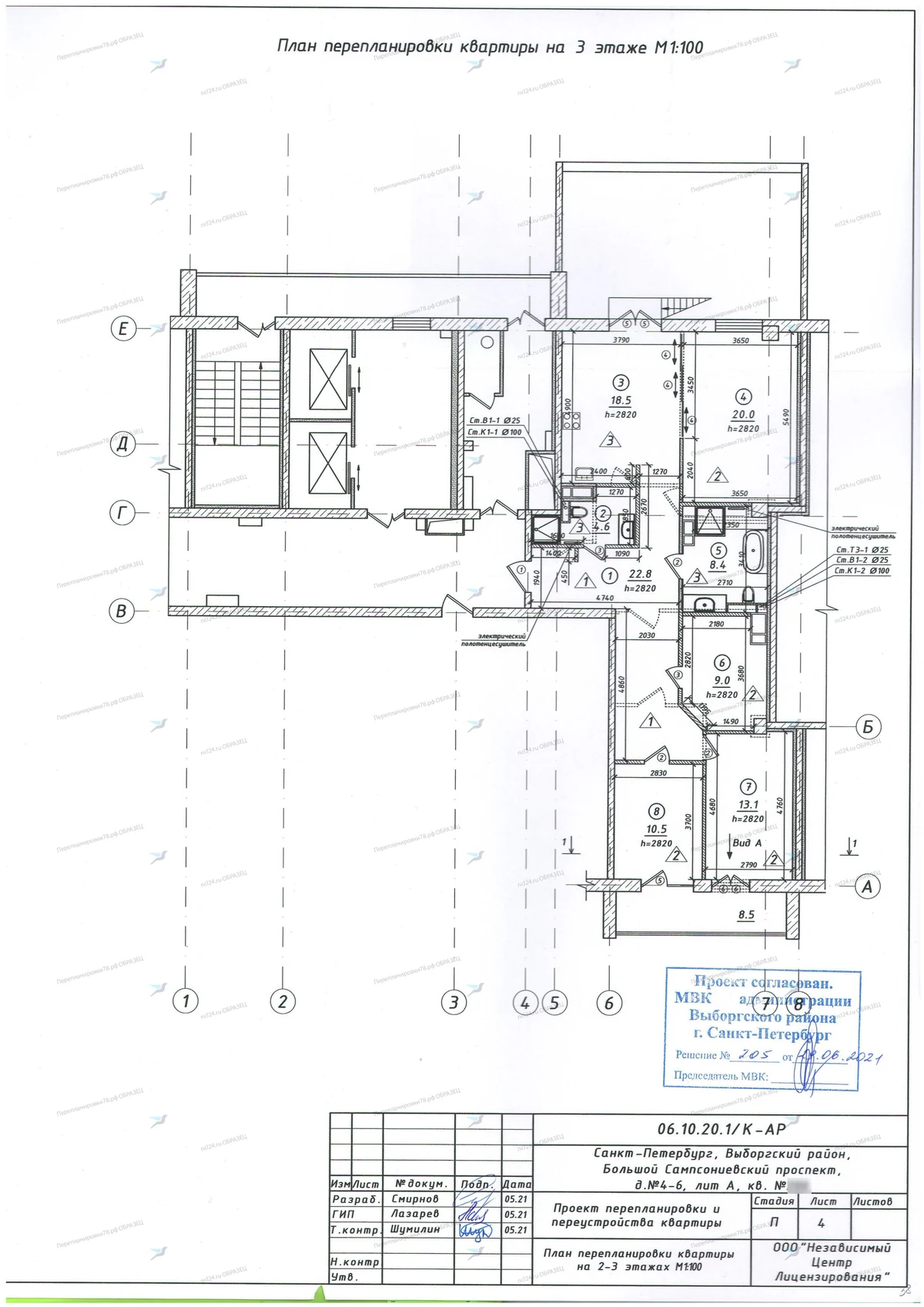
Что хотели изменить
Собственник планировал создать просторную зону гостиной, а заодно увеличить санузел и сделать кабинет. Он заранее знал, что без проекта и одобрения такие изменения могут обернуться проблемами — как минимум при продаже. Поэтому обратился за решением «под ключ», чтобы сделать всё по правилам.
Особенности проекта
Дом — кирпичный, 2008 года, без газа, Выборгский район. В подобных зданиях часто возникает проблема с несущими стенами и коммуникациями. В этом случае перепланировка включала сразу несколько изменений:
Устройство кухни на площади комнаты
Увеличение площади санузла за счёт части жилой комнаты
Устройство кабинета на части площади кухни
Демонтаж подоконной части стены и окна
Такие работы требуют точного проектирования, соблюдения норм и обязательного согласования с надзорными органами.
Что мы сделали
- •Провели обследование конструкций и оценили безопасность всех изменений
- •Подготовили проект перепланировки с включением всех пунктов
- •Разработали раздел КР (конструктивные решения для демонтажа и усиления)
Согласовали проект с:
- •Управляющей компанией (УК)
- •Отделом надзорной деятельности (ОНД)
- •Межведомственной комиссией (МВК)
- •Получили акт приёмочной комиссии
- •Внесли изменения в ЕГРН через подачу документов в Росреестр
Что в итоге
Пространство стало более функциональным: кухня-гостиная, полноценный кабинет, увеличенный санузел
Все документы: акт МВК, проект, согласования с УК, ОНД, МВК
Защиту от любых претензий: объект внесён в реестр с обновлённой планировкой
- •Теперь квартиру можно продавать или сдавать без страха — всё законно, безопасно и согласовано.
Хотите так же?
Планируете объединить помещения, расширить санузел или изменить назначение комнаты? Покажите нам план — подскажем, как согласовать перепланировку квартиры в Выборгском районе СПб.