Перепланировка с объединением санузла и переносом проёма: пос. Парголово, ул. Заречная, 17, стр. 1 (Выборгский район СПб), Выборгский район СПб

«Хотим немного подстроить квартиру под себя — убрать перегородку, устроить кладовую, сместить проём. Это точно нужно согласовывать?» — да, если не хотите проблем с регистрацией и сделками. Мы помогли всё оформить по правилам — с проектом, актом и регистрацией в ЕГРН.
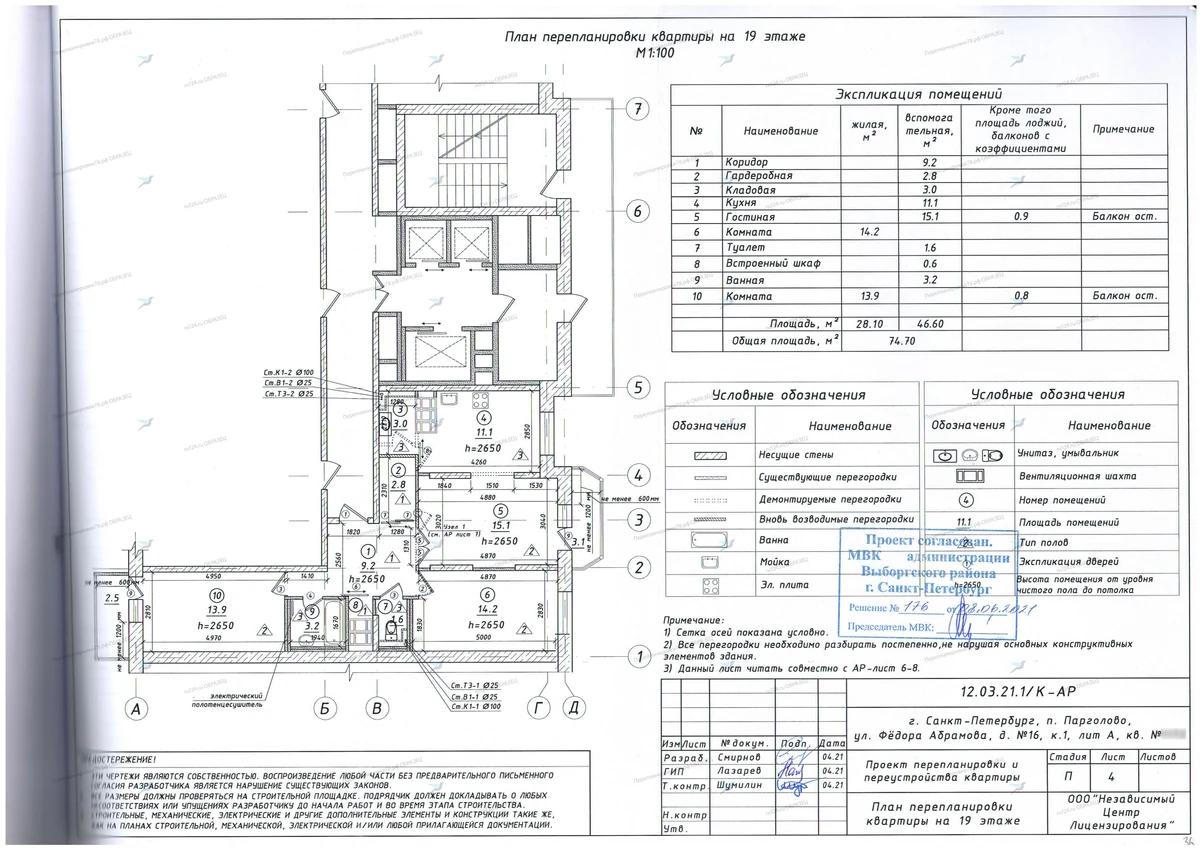
Что хотели изменить
Собственник заранее обратился с запросом на официальное оформление:
- •организация кладовой на площади коридора демонтаж перегородки между кухней и комнатой смещение дверного проёма в комнате устройство встроенного шкафа на площади коридора.
- •Цель — улучшить планировку, но при этом остаться в правовом поле и не нарушить ни один норматив.
Особенности проекта
Дом 2014 года постройки, кирпичный, с железобетонными перекрытиями, расположен в пос. Парголово (Выборгский район). Хотя газ в доме отсутствует, согласование перепланировки всё равно требовало:
- •точного проектирования (в том числе по шкафу и кладовой) учёта вентиляции и нормативных отступов согласования с тремя инстанциями.
Что мы сделали
- •Провели аудит документов на старте и сразу определили возможность согласования перепланировки
- •Разработали проект перепланировки с учётом всех пожеланий клиента
Согласовали проект с:
- •Управляющей организацией (УК)
- •Отделом надзорной деятельности (ОНД)
- •Межведомственной комиссией (МВК Выборгского района)
- •Получили акт приёмки
- •Зарегистрировали изменения в ЕГРН
Что в итоге
Все изменения согласованы и внесены в документы. Квартира стала удобнее — и юридически защищена.
- •Технический план обновлён, объект зарегистрирован. К сделке или проверке готовы.
Хотите так же?
Планируете перепланировку с встроенными элементами, кладовой и демонтажом перегородок в доме на ул. Фёдора Абрамова в пос. Парголово (Выборгский район Санкт-Петербурга)? Мы оформим всё с первого раза — от проекта до ЕГРН. Просто напишите или позвоните нам по контактам на сайте.