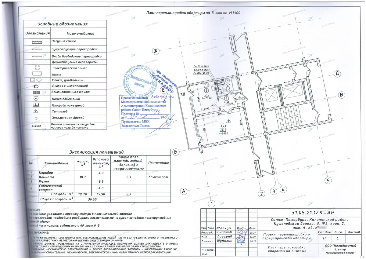
Как узаконили уже сделанную перепланировку: Кушелевская дорога, дом 3, корпус 2 (Калининский район СПб), Калининский район СПб

«Хотим объединить санузлы, убрать дверь на кухню и привести всё в порядок по документам. Можно ли согласовать это в новостройке?» — с таким вопросом к нам обратились владельцы квартиры в ЖК «Калина Парк». Мы провели всё официально: от проекта до регистрации изменений в ЕГРН.
Что хотели изменить
Клиенты обратились до начала работ — чтобы согласовать:
- •объединение двух санузлов в один совмещённый расстановку сантехнического оборудования демонтаж двери на кухню.
- •Задача — сделать современную и удобную планировку без риска отказа от МВК и управляющей компании.
Особенности проекта
Дом 2014 года постройки, панельный, 20 этажей, с железобетонными перекрытиями, расположен в Калининском районе Санкт-Петербурга. Газоснабжение отсутствует. При таких работах особенно важно:
- •получить технические условия на подключение к стоякам соблюсти нормы по вентиляции и расположению мокрых зон оформить все изменения через УК и МВК.
Что мы сделали
- •Провели аудит документов на старте и сразу определили возможность согласования перепланировки
- •Разработали проект перепланировки
- •Получили технические условия на подключение инженерных систем
Согласовали проект с:
- •Управляющей организацией (УК)
- •Отделом надзорной деятельности (ОНД)
- •Межведомственной комиссией (МВК Калининского района)
- •Получили акт приёмки
- •Зарегистрировали изменения в ЕГРН
Что в итоге
Перепланировка узаконена: санузел совмещён, дверь на кухню демонтирована, сантехника — по проекту.
- •Квартира юридически чиста, все изменения зафиксированы в техплане и Росреестре.
Квартира официально введена в эксплуатацию, все изменения зафиксированы.
- •Объект юридически чист. Можно продавать, сдавать, оформлять ипотеку без риска отказа.
Хотите так же?
Сделали перепланировку и нужно её узаконить в квартире в доме на Кушелевской дороге в Калининском районе Санкт-Петербурга? Мы подготовим документы и введём объект в эксплуатацию — быстро и без доработок. Просто напишите или позвоните нам по контактам на сайте.