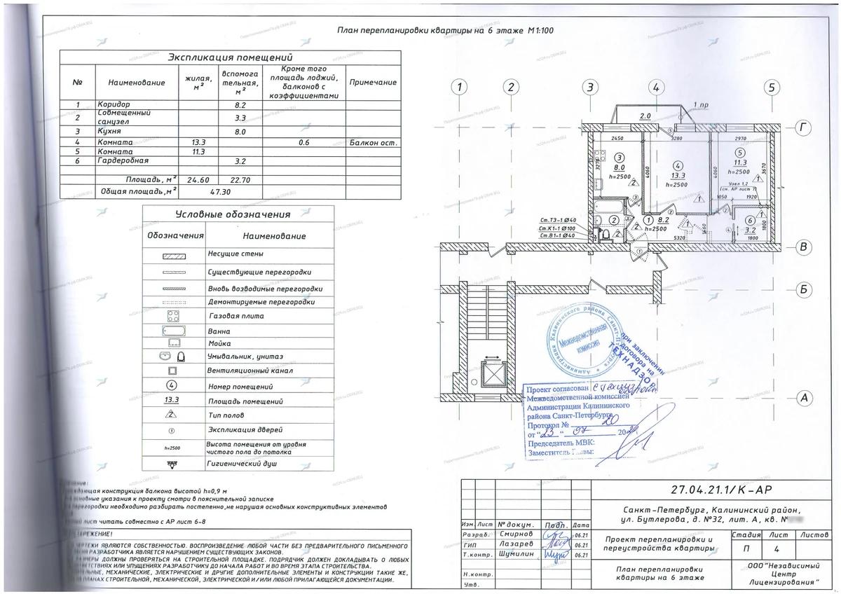
Перепланировка с объединением санузлов и демонтажом двери: улица Бутлерова, дом 32, литера А, Калининский район СПб

«Хочется объединить санузел, сделать гардеробную и убрать одну перегородку. Но всё должно быть по закону — чтобы потом без проблем с документами». Клиенты обратились заранее — мы разработали проект и согласовали всё с первого раза.
Что хотели изменить
- •Собственники обратились за полнымобъединение санузла демонтаж перегородки между комнатой и коридором устройство гардеробной на площади комнаты замена входной деревянной двери на стальную.
- •Всё это нужно было оформить официально, чтобы не возникло проблем с УК, сделками или при перепланировке в будущем.
Особенности проекта
Дом 1964 года постройки, кирпичный, с железобетонными перекрытиями и центральным газом.соблюдения требований к вентиляции и инженерии, учёта нормативов при демонтаже перегородок, проектирования гардеробной без нарушения эвакуационных путей.
Что мы сделали
- •Провели аудит документов на старте и сразу определили возможность согласования перепланировки
- •Разработали проект перепланировкиУправляющей организацией (УК)
- •Отделом надзорной деятельности (ОНД)
- •Межведомственной комиссией (МВК Калининского района)
- •Получили акт приёмки
- •Зарегистрировали изменения в ЕГРН
Что в итоге
Планировка стала более удобной и современной. Все изменения узаконены и зафиксированы в документах.
- •Квартира юридически чиста. Можно спокойно продавать, сдавать или проводить дальнейшие улучшения.
Хотите так же?
Планируете перепланировку с гардеробной и объединением санузла в квартире с газом в доме на ул. Бутлерова в Калининском районе Санкт-Петербурга? Оформим всё официально — от проекта до ЕГРН. Просто напишите или позвоните нам по контактам на сайте.

