Перепланировка с проёмом в несущей и расширением санузла: ул. Маршала Казакова, 14, корп. 1, лит. А (Кировский район СПб), Кировский район СПб

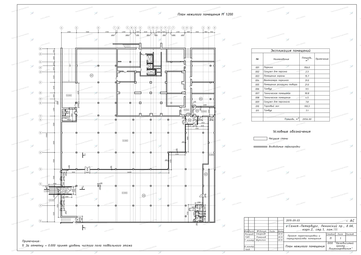
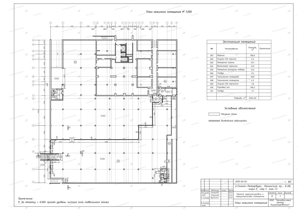
«Планируем перепланировку в квартире в новостройке — хотим понимать, что допустимо, и как сделать сразу правильно». Клиенты обратились на старте — мы разработали проект, с которым можно пройти все этапы согласования. Что хотели сделать Объект — квартира в монолитном доме 2019 года постройки, с железобетонными перекрытиями. Район — МО Южно-Приморский, Ленинский проспект, Санкт-Петербург. В карточке дома отсутствуют данные по газу, но проектирование требовало соблюдения всех норм по вентиляции, зонированию и инженерным системам. Цель клиента — заранее получить корректный проект, чтобы не попасть в ситуацию с отказом МВК или УК после начала ремонта.
Что хотели изменить
Цель клиента — заранее получить корректный проект, чтобы не попасть в ситуацию с отказом МВК или УК после начала ремонта.
Особенности проекта
Объект — квартира в монолитном доме 2019 года постройки, с железобетонными перекрытиями. Район — МО Южно-Приморский, Ленинский проспект, Санкт-Петербург. В карточке дома отсутствуют данные по газу, но проектирование требовало соблюдения всех норм по вентиляции, зонированию и инженерным системам.
Что мы сделали
- •Провели аудит документов на старте и сразу определили возможность согласования перепланировки
- •Разработали проект перепланировки в соответствии с актуальными требованиями УК и МВК для новостроек
- •Подготовили комплект документации для подачи на согласование
Что в итоге
У клиента на руках проект, с которым можно проходить все этапы согласования без риска переделок.
- •Основа для безопасного ремонта, легализации перепланировки и внесения изменений в техдокументы.
Хотите так же?
Планируете перепланировку в квартире в новостройке на Ленинском проспекте (МО Южно-Приморский)? Разработаем проект под УК и МВК — без возвратов и отказов. Просто напишите или позвоните нам по контактам на сайте.