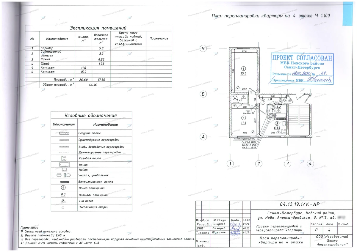
π Π‘ΠΎΠ³Π»Π°ΡΠΎΠ²Π°Π½ΠΈΠ΅ ΠΏΠ΅ΡΠ΅ΠΏΠ»Π°Π½ΠΈΡΠΎΠ²ΠΊΠΈ Ρ ΠΎΠ±ΡΠ΅Π΄ΠΈΠ½Π΅Π½ΠΈΠ΅ΠΌ ΡΠ°Π½ΡΠ·Π»Π°: ΡΠ». ΠΠΎΠ²ΠΎ-ΠΠ»Π΅ΠΊΡΠ°Π½Π΄ΡΠΎΠ²ΡΠΊΠ°Ρ, 15, Π»ΠΈΡ. Π (ΠΠΈΡΠΎΠ²ΡΠΊΠΈΠΉ ΡΠ°ΠΉΠΎΠ½ Π‘ΠΠ±), ΠΠΈΡΠΎΠ²ΡΠΊΠΈΠΉ ΡΠ°ΠΉΠΎΠ½ Π‘ΠΠ±

Β«Π₯ΠΎΡΠΈΠΌ ΠΎΠ±ΡΠ΅Π΄ΠΈΠ½ΠΈΡΡ ΡΠ°Π½ΡΠ·Π΅Π», Π΄ΠΎΠ±Π°Π²ΠΈΡΡ Π½ΠΈΡΡ ΠΏΠΎΠ΄ ΠΊΠΎΠΌΠΌΡΠ½ΠΈΠΊΠ°ΡΠΈΠΈ, Π½ΠΎ ΠΏΠ΅ΡΠ΅ΠΆΠΈΠ²Π°Π΅ΠΌ: Π° Π²Π΄ΡΡΠ³ ΠΎΡΠΊΠ°ΠΆΡΡ ΠΈΠ·-Π·Π° Π³Π°Π·Π° ΠΈΠ»ΠΈ ΡΡΠ°ΡΠΎΠΉ ΡΠ΅ΡΠΈΠΈ?Β» β Ρ ΡΠ°ΠΊΠΈΠΌ Π²ΠΎΠΏΡΠΎΡΠΎΠΌ ΠΎΠ±ΡΠ°ΡΠΈΠ»ΠΈΡΡ ΠΊ Π½Π°ΠΌ ΡΠΎΠ±ΡΡΠ²Π΅Π½Π½ΠΈΠΊΠΈ ΠΊΠ²Π°ΡΡΠΈΡΡ Π² ΠΏΠ°Π½Π΅Π»ΡΠ½ΠΎΠΌ Π΄ΠΎΠΌΠ΅ Π½Π° ΠΠΎΠ²ΠΎ-ΠΠ»Π΅ΠΊΡΠ°Π½Π΄ΡΠΎΠ²ΡΠΊΠΎΠΉ. ΠΡ ΠΏΠΎΠ΄ΠΊΠ»ΡΡΠΈΠ»ΠΈΡΡ Π½Π° ΡΡΠ°ΡΡΠ΅ ΠΈ ΠΎΡΠΎΡΠΌΠΈΠ»ΠΈ Π²ΡΡ ΠΎΡΠΈΡΠΈΠ°Π»ΡΠ½ΠΎ β ΠΎΡ ΠΏΡΠΎΠ΅ΠΊΡΠ° ΠΈ ΡΠ΅Ρ Π½ΠΈΡΠ΅ΡΠΊΠΈΡ ΡΡΠ»ΠΎΠ²ΠΈΠΉ Π΄ΠΎ ΡΠΈΠ½Π°Π»ΡΠ½ΠΎΠ³ΠΎ Π°ΠΊΡΠ° ΠΈ ΡΠ΅Π³ΠΈΡΡΡΠ°ΡΠΈΠΈ Π² ΠΠΠ Π.
Π§ΡΠΎ Ρ ΠΎΡΠ΅Π»ΠΈ ΠΈΠ·ΠΌΠ΅Π½ΠΈΡΡ
ΠΠ»ΠΈΠ΅Π½Ρ ΠΏΠ»Π°Π½ΠΈΡΠΎΠ²Π°Π» ΠΊΠΎΠΌΠΏΠ°ΠΊΡΠ½ΡΡ ΠΈ ΡΠ΄ΠΎΠ±Π½ΡΡ ΠΏΠ΅ΡΠ΅ΠΏΠ»Π°Π½ΠΈΡΠΎΠ²ΠΊΡ Ρ Π°ΠΊΡΠ΅Π½ΡΠΎΠΌ Π½Π° ΠΊΠΎΠΌΡΠΎΡΡ ΠΈ Π΄ΠΎΡΡΡΠΏ ΠΊ ΠΊΠΎΠΌΠΌΡΠ½ΠΈΠΊΠ°ΡΠΈΡΠΌ. Π Π°Π±ΠΎΡΡ Π²ΠΊΠ»ΡΡΠ°Π»ΠΈ:
- β’Π‘ΠΎΠ³Π»Π°ΡΠΎΠ²Π°Π½ΠΈΠ΅ ΠΏΠ΅ΡΠ΅ΠΏΠ»Π°Π½ΠΈΡΠΎΠ²ΠΊΠΈ ΠΏΠΎ ΠΎΠ±ΡΠ΅Π΄ΠΈΠ½Π΅Π½ΠΈΡ ΡΠ°Π½ΡΠ·Π»Π° Ρ ΡΡΡΠ°Π½ΠΎΠ²ΠΊΠΎΠΉ ΡΠ°Π·Π΄Π²ΠΈΠΆΠ½ΠΎΠΉ Π΄Π²Π΅ΡΠΈ ΠΈ ΠΈΠ·ΠΌΠ΅Π½Π΅Π½ΠΈΠ΅ΠΌ ΡΠ°ΡΠΏΠΎΠ»ΠΎΠΆΠ΅Π½ΠΈΡ ΡΠ°Π½ΡΠ΅Ρ Π½ΠΈΡΠ΅ΡΠΊΠΈΡ ΠΏΡΠΈΠ±ΠΎΡΠΎΠ²; β’ Π£ΡΡΡΠΎΠΉΡΡΠ²ΠΎ ΠΏΡΠΎΡΠΌΠ° Π² ΡΠ°Π½ΡΠ·Π»Π΅ Π΄Π»Ρ Π΄ΠΎΡΡΡΠΏΠ° ΠΊ ΠΈΠ½ΠΆΠ΅Π½Π΅ΡΠ½ΡΠΌ ΠΊΠΎΠΌΠΌΡΠ½ΠΈΠΊΠ°ΡΠΈΡΠΌ; β’ ΠΠ΅ΠΌΠΎΠ½ΡΠ°ΠΆ ΠΈ ΠΌΠΎΠ½ΡΠ°ΠΆ ΡΠ°ΡΡΠΈ ΠΏΠ΅ΡΠ΅Π³ΠΎΡΠΎΠ΄ΠΎΠΊ ΠΌΠ΅ΠΆΠ΄Ρ ΡΠΊΠ°ΡΠΎΠΌ, ΠΊΠΎΡΠΈΠ΄ΠΎΡΠΎΠΌ ΠΈ ΠΊΠΎΠΌΠ½Π°ΡΠΎΠΉ; β’ ΠΠΎΠ»ΡΡΠ΅Π½ΠΈΠ΅ ΡΠ΅Ρ Π½ΠΈΡΠ΅ΡΠΊΠΈΡ ΡΡΠ»ΠΎΠ²ΠΈΠΉ; β’ Π‘ΠΎΠ³Π»Π°ΡΠΎΠ²Π°Π½ΠΈΠ΅ Ρ Π£Π ΠΈ ΠΠΠ.
ΠΡΠ΅ ΡΡΠ°ΠΏΡ Π±ΡΠ»ΠΈ Π²ΡΠΏΠΎΠ»Π½Π΅Π½Ρ Π΄ΠΎ Π½Π°ΡΠ°Π»Π° ΡΠ΅ΠΌΠΎΠ½ΡΠ° β Ρ ΡΡΡΡΠΎΠΌ ΡΡΠ΅Π±ΠΎΠ²Π°Π½ΠΈΠΉ ΠΊ Π΄ΠΎΠΌΡ Ρ Π³Π°Π·ΠΎΠΌ ΠΈ ΠΆΠ΅Π»Π΅Π·ΠΎΠ±Π΅ΡΠΎΠ½Π½ΡΠΌΠΈ ΠΏΠ»ΠΈΡΠ°ΠΌΠΈ.
ΠΡΠΎΠ±Π΅Π½Π½ΠΎΡΡΠΈ ΠΏΡΠΎΠ΅ΠΊΡΠ°
ΠΠ°Π½Π΅Π»ΡΠ½ΡΠΉ Π΄ΠΎΠΌ 1961 Π³ΠΎΠ΄Π°, 5 ΡΡΠ°ΠΆΠ΅ΠΉ, Π³Π°Π· ΡΠ΅Π½ΡΡΠ°Π»ΠΈΠ·ΠΎΠ²Π°Π½Π½ΡΠΉ. ΠΠ΅ΡΠ΅ΠΊΡΡΡΠΈΡ β ΠΆΠ΅Π»Π΅Π·ΠΎΠ±Π΅ΡΠΎΠ½Π½ΡΠ΅. Π Π°ΠΉΠΎΠ½ β ΠΠΈΡΠΎΠ²ΡΠΊΠΈΠΉ (ΠΏΠΎ Π±Π°Π·Π΅ ΠΠΠ).
ΠΠ»ΡΡΠ΅Π²ΡΠ΅ ΠΎΡΠΎΠ±Π΅Π½Π½ΠΎΡΡΠΈ: β’ ΠΠ±ΡΠ΅Π΄ΠΈΠ½Π΅Π½ΠΈΠ΅ ΡΠ°Π½ΡΠ·Π»Π° ΠΈ ΠΏΠ΅ΡΠ΅Π½ΠΎΡ ΡΠ°Π½ΡΠ΅Ρ Π½ΠΈΠΊΠΈ ΡΡΠ΅Π±ΡΡΡ ΠΎΠ±ΡΠ·Π°ΡΠ΅Π»ΡΠ½ΡΡ ΡΠ΅Ρ Π½ΠΈΡΠ΅ΡΠΊΠΈΡ ΡΡΠ»ΠΎΠ²ΠΈΠΉ; β’ ΠΠΎΠΌ Ρ Π³Π°Π·ΠΎΠΌ β ΡΡΠΈΠ»Π΅Π½Π½ΡΠ΅ ΡΡΠ΅Π±ΠΎΠ²Π°Π½ΠΈΡ ΠΊ Π²Π΅Π½ΡΠΈΠ»ΡΡΠΈΠΈ ΠΈ ΠΈΠ½ΠΆΠ΅Π½Π΅ΡΠ½ΡΠΌ ΠΊΠ°Π½Π°Π»Π°ΠΌ; β’ Π£ΡΡΡΠΎΠΉΡΡΠ²ΠΎ ΠΏΡΠΎΡΠΌΠ° Π΄Π»Ρ ΠΎΠ±ΡΠ»ΡΠΆΠΈΠ²Π°Π½ΠΈΡ ΠΊΠΎΠΌΠΌΡΠ½ΠΈΠΊΠ°ΡΠΈΠΉ β Π½ΡΠΆΠ΄Π°Π΅ΡΡΡ Π² ΠΎΠ±ΠΎΡΠ½ΠΎΠ²Π°Π½ΠΈΠΈ ΠΈ ΡΠΎΡΠ½ΠΎΠΌ ΠΏΡΠΎΠ΅ΠΊΡΠ΅.
Π§ΡΠΎ ΠΌΡ ΡΠ΄Π΅Π»Π°Π»ΠΈ
ΠΡΠΎΠ²Π΅Π»ΠΈ Π°ΡΠ΄ΠΈΡ ΠΊΠ²Π°ΡΡΠΈΡΡ ΠΈ ΠΏΡΠΎΠ²Π΅ΡΠΈΠ»ΠΈ ΡΠ΅Ρ Π½ΠΈΡΠ΅ΡΠΊΡΡ Π΄ΠΎΠΏΡΡΡΠΈΠΌΠΎΡΡΡ ΠΏΠ΅ΡΠ΅ΠΏΠ»Π°Π½ΠΈΡΠΎΠ²ΠΊΠΈ Π Π°Π·ΡΠ°Π±ΠΎΡΠ°Π»ΠΈ ΠΏΡΠΎΠ΅ΠΊΡ Ρ ΡΡΡΡΠΎΠΌ ΡΠ°Π½ΠΈΡΠ°ΡΠ½ΡΡ , Π³Π°Π·ΠΎΠ²ΡΡ ΠΈ ΠΊΠΎΠ½ΡΡΡΡΠΊΡΠΈΠ²Π½ΡΡ Π½ΠΎΡΠΌ ΠΠΎΠ»ΡΡΠΈΠ»ΠΈ ΡΠ΅Ρ Π½ΠΈΡΠ΅ΡΠΊΠΈΠ΅ ΡΡΠ»ΠΎΠ²ΠΈΡ Π‘ΠΎΠ³Π»Π°ΡΠΎΠ²Π°Π»ΠΈ ΠΏΡΠΎΠ΅ΠΊΡ Ρ Π£Π ΠΈ ΠΠΠ ΠΡΠ³Π°Π½ΠΈΠ·ΠΎΠ²Π°Π»ΠΈ Π²Π²ΠΎΠ΄ ΠΎΠ±ΡΠ΅ΠΊΡΠ° Π² ΡΠΊΡΠΏΠ»ΡΠ°ΡΠ°ΡΠΈΡ ΠΈ ΡΠ΅Π³ΠΈΡΡΡΠ°ΡΠΈΡ ΠΈΠ·ΠΌΠ΅Π½Π΅Π½ΠΈΠΉ Π² ΠΠΠ Π
Π§ΡΠΎ Π² ΠΈΡΠΎΠ³Π΅
ΠΠ²Π°ΡΡΠΈΡΠ° Ρ Π½ΠΎΠ²ΡΠΌ, ΠΏΡΠΎΠ΄ΡΠΌΠ°Π½Π½ΡΠΌ ΡΠ°Π½ΡΠ·Π»ΠΎΠΌ ΡΠ΅ΠΏΠ΅ΡΡ ΠΏΠΎΠ»Π½ΠΎΡΡΡΡ ΡΠΎΠΎΡΠ²Π΅ΡΡΡΠ²ΡΠ΅Ρ Π½ΠΎΡΠΌΠ°ΠΌ. ΠΡΡ ΠΎΡΠΎΡΠΌΠ»Π΅Π½ΠΎ, Π²Π½Π΅ΡΠ΅Π½ΠΎ Π² ΡΠ΅Π΅ΡΡΡ, ΡΠΈΡΠΊΠΎΠ² Π½Π΅Ρ.
Π₯ΠΎΡΠΈΡΠ΅ ΡΠ°ΠΊ ΠΆΠ΅?
ΠΠ»Π°Π½ΠΈΡΡΠ΅ΡΠ΅ ΠΎΠ±ΡΠ΅Π΄ΠΈΠ½ΠΈΡΡ ΡΠ°Π½ΡΠ·Π΅Π» ΠΈ ΠΎΠ±Π½ΠΎΠ²ΠΈΡΡ ΠΏΠ»Π°Π½ΠΈΡΠΎΠ²ΠΊΡ Π² ΠΊΠ²Π°ΡΡΠΈΡΠ΅ Ρ Π³Π°Π·ΠΎΠΌ β ΠΊΠ°ΠΊ Π½Π° ΠΠΎΠ²ΠΎ-ΠΠ»Π΅ΠΊΡΠ°Π½Π΄ΡΠΎΠ²ΡΠΊΠΎΠΉ, 15? Π‘Π΄Π΅Π»Π°Π΅ΠΌ ΠΏΡΠΎΠ΅ΠΊΡ, ΡΠΎΠ³Π»Π°ΡΡΠ΅ΠΌ Π²ΡΡ Ρ Π£Π ΠΈ ΠΠΠ, Π΄ΠΎΠ²Π΅Π΄ΡΠΌ Π΄ΠΎ ΠΠΠ Π. ΠΠΈΡΠΈΡΠ΅ β ΠΎΠ±ΡΡΠ΄ΠΈΠΌ Π²Π°Ρ Π²Π°ΡΠΈΠ°Π½Ρ.