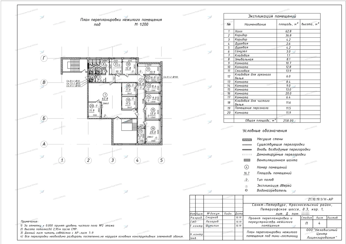
📌 Согласование проёма в несущей стене и переноса сантехники: Петергофское шоссе, 3, корп. 1, литера Д (Кировский район СПб), Кировский район СПб

«У нас и несущая, и газ… А можно вообще такое узаконить?» — с таким вопросом к нам обратились собственники квартиры в кирпичном доме на Петергофском шоссе. Можно. Если знать, как правильно оформить проект, пройти все инстанции и соблюсти нормы усиления проёма. Мы это сделали.
Что хотели изменить
Изменения были непростыми, но важными для комфорта:
- •Проект перепланировки по устройству дверного проема в несущей стене; • Перенос сантехнического оборудования с подключением к существующим стоякам ГВС/ХВС и канализации; • Разработка проекта с разделом КР по усилению несущих конструкций; • Согласование с УК, МВК, ГАСН, ОНД.
Особенности проекта
Жилой кирпичный дом 1971 года, 5 этажей, 80 квартир. Газоснабжение — центральное. Перекрытия — железобетонные.
Ключевые сложности: • Проём в несущей стене — требует усиления, раздела КР и согласования минимум с четырьмя инстанциями; • Газ — дополнительное ограничение по безопасности и регламенту ГАСН; • Дом старой серии — все действия должны учитывать конструктив и вентиляционные каналы.
Что мы сделали
- •Подготовили проект с расчётами на усиление проёма и схемой переноса сантехники; • Получили технические условия; • Согласовали с УК, МВК, ГАСН, ОНД; • Обеспечили приёмку объекта и регистрацию изменений в ЕГРН.
Что в итоге
Теперь квартира — не только удобна, но и полностью соответствует нормам. Все изменения оформлены официально, зафиксированы в реестре.
Хотите так же?
Хотите оформить проём в несущей и сделать перепланировку с переносом сантехники в доме с газом на Петергофском шоссе? Сделаем всё строго по СПб-нормам — от проекта с разделом КР до ЕГРН. Напишите нам, чтобы обсудить ваш сценарий.