Портфолио согласованных перепланировок в СПб

131 успешно согласованных проектов перепланировки квартир и нежилых помещений
Реальные кейсы с фото до и после • Гарантия результата

Районы и области

Квартиры

90 проектов найдено

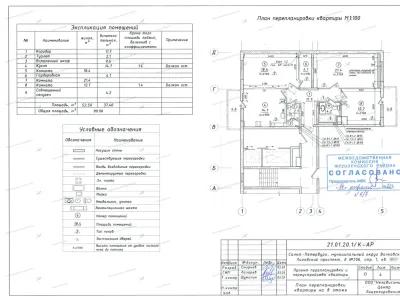
📌 Перепланировка с гардеробной и расширением коридора: Европейский пр., 13, корп. 1 (Кудрово, Заневское поселение)
Адрес
Заневское гор. Поселение, г. Кудрово, Европейский пр., дом 13, корпус 1
Район
Красногвардейский район СПб

📌 Перепланировка с гардеробной и расширением коридора: Европейский пр., 13, корп. 1 (Кудрово, Заневское поселение)

  • Что хотели изменить Клиент заранее понимал: перенос сантехники, гардеробная и демонтаж перегородок — это не «по вдохновению», а строго по проекту
  • Он обратился к нам, чтобы сделать всё официально: • Увеличить коридор за счёт площади комнаты • Демонтировать перегородку с дверью между кухней и коридором • Устроить гардеробную на части комнаты • Изменить расположение сантехнических приборов • Важно было пройти все согласования — особенно по мокрым зонам и демонтажу перегородки
  • Особенности проекта Дом: монолитный, 23 этажа, 2014 года постройки Перекрытия: железобетонные Газоснабжение: отсутствует (отопление от крышной котельной) 🛠️ Сложности проекта: Изменение расположения сантехники → потребовало учёта техусловий Гардеробная в жилой комнате → нужно было обосновать функциональность Демонтаж перегородки с дверью → прорабатывали в проекте на уровне норм безопасности Что мы сделали • Оценили планировку и подтвердили возможность узаконить изменения • Подготовили проект перепланировки с учетом демонтажа и новой расстановки сантехники Согласовали с: • УК • ОНД • МВК Заневского городского поселения • Получили акт приёмки • Внесли изменения в ЕГРН Что в итоге Теперь квартира стала функциональнее: просторный вход, логичное зонирование и удобный гардероб
📌 Согласование перепланировки с проёмом в несущей и расширением санузла: Московское шоссе, 26, корп. 2, стр. 1 (Московский район СПб)
Адрес
Московское шоссе, дом 26, корп. 2, стр. 1
Район
Московский район СПб

📌 Согласование перепланировки с проёмом в несущей и расширением санузла: Московское шоссе, 26, корп. 2, стр. 1 (Московский район СПб)

  • Что хотели изменить Клиент планировал создать комфортную и логичную планировку
  • Работы включали: • Согласование перепланировки по увеличению санузла за счёт площади коридора; • Устройство дверного проёма 1200×2200 мм в несущей стене между кухней и комнатой; • Увеличение комнаты за счёт части площади кладовой; • Разработка проекта с разделом КР по усилению конструкции; • Согласование с УК, МВК, ГАСН, ОНД
  • Всё было выполнено на этапе до начала ремонта — строго по нормам и с расчётами
📌 Согласование перепланировки с расширением санузла и демонтажом перегородки: Лиговский пр., 206, стр. 1 (Фрунзенский район СПб)
Адрес
Лиговский пр., дом 206, стр. 1
Район
Фрунзенский район СПб

📌 Согласование перепланировки с расширением санузла и демонтажом перегородки: Лиговский пр., 206, стр. 1 (Фрунзенский район СПб)

  • Что хотели изменить Клиент заранее уточнил, что изменения будут затрагивать несущие и мокрые зоны, поэтому запрос был: «всё под ключ, чтобы не переделывать потом»: • Увеличение санузла за счёт площади коридора • Демонтаж перегородки между кухней и комнатой с установкой раздвижной двери • Утепление наружной стены (без оконного проёма) в жилой комнате
  • Риски были связаны с согласованием демонтажа и инженерных работ
  • Важно было пройти все инстанции — и оформить в ЕГРН