Портфолио согласованных перепланировок в СПб

128 успешно согласованных проектов перепланировки квартир и нежилых помещений
Реальные кейсы с фото до и после • Гарантия результата

Районы и области

Квартиры

87 проектов найдено

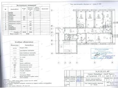
📌 Согласование перепланировки с гардеробной и совмещённым санузлом: Санкт-Петербург, улица Гусарская, дом 9, корпус 2, литера А
Адрес
Санкт-Петербург, Ул. Гусарская, д. 9, корп. 2, лит. А
Район
Пушкинский район СПб

📌 Согласование перепланировки с гардеробной и совмещённым санузлом: Санкт-Петербург, улица Гусарская, дом 9, корпус 2, литера А

  • Что хотели изменить • Клиент хотел организоватьСогласовать устройство совмещённого санузла • Увеличить кухню за счёт части комнаты • Устроить гардеробную • Перенести дверной проём в санузел
  • любые изменения с мокрыми зонами и перегородкамиоформить по закону, с финалом в ЕГРН
  • Особенности проекта Дом: кирпичный, 5 этажей, 2011 года постройкижелезобетонныеотсутствует 🛠️Мокрая зона → потребовала получения технических условий на инженерные коммуникации Проектные решения проверялись на МВК, учитывались актуальные нормы для совмещения санузлов и переноса проёмов
📌 Ввод в эксплуатацию после перепланировки: улица Чапаева, дом 11/4
Адрес
Ул. Чапаева, дом 11/4
Район
Петроградский район СПб

📌 Ввод в эксплуатацию после перепланировки: улица Чапаева, дом 11/4

  • Что хотели изменить Клиент обратился за узакониванием• Проведение переобмера квартиры после выполненных работ; • Подготовку полного комплекта документов для ввода в эксплуатацию
  • Основная задача — оформить изменения официально, без переделок и штрафов, несмотря на исторический контекст объекта
  • Особенности проекта Дом 1910 года постройки, кирпичный, 6 этажей
📌 Согласование перепланировки с объединением санузла: улица Ново-Александровская, дом 15, литера корпус
Адрес
Ул. Ново-Александровская, дом 15, лит. К
Район
Невский район СПб

📌 Согласование перепланировки с объединением санузла: улица Ново-Александровская, дом 15, литера корпус

  • Что хотели изменить Клиент планировал компактную и удобную перепланировку с акцентом на• Согласование перепланировки по объединению санузла с установкой раздвижной двери и изменением расположения сантехнических приборов; • Устройство проёма в санузле для доступа к инженерным коммуникациям; • Демонтаж и монтаж части перегородок между шкафом, коридором и комнатой; • Получение технических условий; • Согласование с УК и МВК
  • Все этапы были выполнены до начала ремонта — с учётом требований к дому с газом и железобетонными плитами
  • Особенности проекта Панельный дом 1961 года, 5 этажей, газ централизованный