Портфолио согласованных перепланировок в СПб

128 успешно согласованных проектов перепланировки квартир и нежилых помещений
Реальные кейсы с фото до и после • Гарантия результата

Районы и области

Нежилые помещения

41 проект найдено

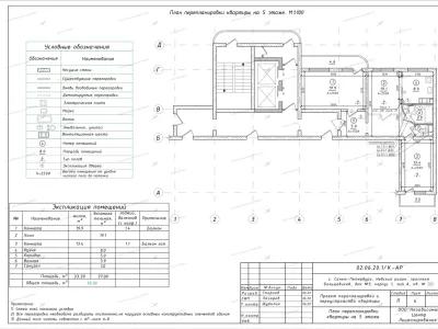
📌 Согласование перепланировки с демонтажом шкафа и установкой арочной перегородки: улица Благодатная, дом 51, литера А
Адрес
ул. Благодатная, дом 51, лит. А
Район
Московский район СПб

📌 Согласование перепланировки с демонтажом шкафа и установкой арочной перегородки: улица Благодатная, дом 51, литера А

  • Что хотели изменить • Демонтаж встроенного шкафа; • Устройство новой перегородки из ГКЛ с проёмом в форме арки
  • Особенности проекта Дом 1952 года, кирпичный
  • Перекрытия — железобетонные
📌 Переобмер и ввод в эксплуатацию после перепланировки: проспект Большевиков, дом 9, корпус 3, литера Э
Адрес
пр. Большевиков, дом 9, корп. 3, лит. Э
Район
Невский район СПб

📌 Переобмер и ввод в эксплуатацию после перепланировки: проспект Большевиков, дом 9, корпус 3, литера Э

  • Что хотели изменить • Цель — привести техпаспорт • Провели переобмер квартиры после перепланировки • Подготовили пакет документов для ввода объекта в эксплуатацию • 💬 «Сделали ремонт, всё красиво
  • Осталось — оформить официально
  • Не хотелось, чтобы подвисло» Особенности проекта Дом: панельный, серия 1‑ЛГ‑504Д‑10, 1972железобетонные Газоснабжение: Дом с газом → изменения должны быть корректно отражены в проекте Серия 504Д‑10 → типовые ограничения и нормы Что мы сделали • Провели актуальный обмер квартиры • Подготовили комплект технической документации • Сопровождали подачу на ввод в эксплуатацию • Внесли сведения о перепланировке в ЕГРН Что в итоге по плану, по факту, по реестру
📌 Согласование перепланировки с расширением гардеробной и смещением проёмов: проспект Обуховской обороны, дом 138, корпус 2, литера А
Адрес
пр. Обуховской обороны, дом 138, корп. 2, лит. А
Район
Невский район СПб

📌 Согласование перепланировки с расширением гардеробной и смещением проёмов: проспект Обуховской обороны, дом 138, корпус 2, литера А

  • Что хотели изменить • Увеличение гардеробной за счёт площади комнаты; • Смещение дверного проёма между коридором и комнатой; • Смещение дверного проёма ванной
  • Особенности проекта Дом 2012 года, кирпично-монолитный
  • Перекрытия — железобетонные