Портфолио согласованных перепланировок в СПб

0 успешно согласованных проектов перепланировки квартир и нежилых помещений
Реальные кейсы с фото до и после • Гарантия результата

Районы и области

Нежилые помещения

41 проект найдено

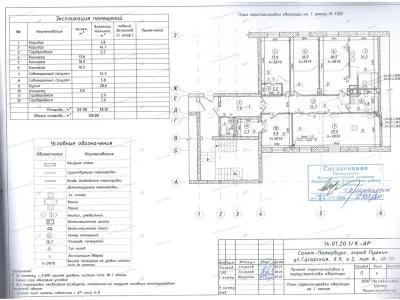
📌 Горизонтальное объединение двух квартир с проёмом в несущей: пр. Космонавтов, 30, корп. 4, лит. А (Московский район СПб)
Адрес
пр. Космонавтов, дом 30, корп. 4, лит. А
Район
Московский район СПб

📌 Горизонтальное объединение двух квартир с проёмом в несущей: пр. Космонавтов, 30, корп. 4, лит. А (Московский район СПб)

  • Что хотели изменить Собственники хотели объединить две квартиры — чтобы получилась одна удобная, с нормальным зонированием и комфортом: • Провести горизонтальное объединение двух квартир • Выполнить проём в несущей стеновой панели • Устроить совмещённый санузел • Смонтировать и демонтировать перегородки • Закрыть старые проёмы, которые не нужны в новой планировке • 💬 «Мы знали, что будет сложно — но не хотели “лепить” общее пространство на авось
  • Нужно было по уму»
  • Особенности проекта Дом: панельный, 5 этажей, 1971 года постройки Перекрытия: железобетонные Газоснабжение: центральное ⚠️ Особые условия: Проём в несущей — требовал раздела КР, расчётов и усиления Работы с газом → обязательное соблюдение норм, учтены в проекте Старый фонд → особое внимание к узлам сопряжения конструкций Что мы сделали • Провели аудит и подтвердили возможность объединения • Разработали проект перепланировки с разделом КР (усиление несущих) • Согласовали с: УК, МВК Московского района, ОНД, ГАСН • Получили акт приёмки • Внесли изменения в ЕГРН как единый жилой объект Что в итоге Теперь вместо двух тесных квартир — один продуманный и просторный дом: со своим санузлом, безопасным проёмом и новыми перегородками
📌 Согласование перепланировки с проёмом в несущей и душевой зоной: Кушелевская дорога, 5, корп. 2, лит. А (Калининский район СПб)
Адрес
Кушелевская дорога, дом 5, корп. 2, лит. А
Район
Калининский район СПб

📌 Согласование перепланировки с проёмом в несущей и душевой зоной: Кушелевская дорога, 5, корп. 2, лит. А (Калининский район СПб)

  • Что хотели изменить Клиент хотел современную планировку с открытым душем и удобным проходом между кухней и комнатой
  • Работы включали: • Устройство дверного проёма в несущей стене между кухней и комнатой; • Замена душевого поддона на трап с душевой лейкой и подключением к стоякам; • Зашивка инженерных коммуникаций в короб с доступом в санузле; • Проект с разделом КР по усилению конструкции; • Получение технических условий по инженерным системам; • Согласование с УК, МВК, ГАСН, ОНД
  • Особенности проекта Дом 2016 года, монолитный, 25 этажей
📌 Ввод в эксплуатацию после перепланировки: ул. Краснопутиловская, 25, лит. А (Кировский район СПб)
Адрес
ул. Краснопутиловская, дом 25, лит. А
Район
Кировский район СПб

📌 Ввод в эксплуатацию после перепланировки: ул. Краснопутиловская, 25, лит. А (Кировский район СПб)

  • Что хотели изменить Клиенту нужно было узаконить уже выполненные изменения
  • Мы выполнили: • Переобмер квартиры после перепланировки; • Подготовку полного комплекта документов для ввода в эксплуатацию
  • Ключевая цель — пройти согласование и регистрацию без необходимости переделывать ремонт