Портфолио согласованных перепланировок в СПб

128 успешно согласованных проектов перепланировки квартир и нежилых помещений
Реальные кейсы с фото до и после • Гарантия результата

Районы и области

Нежилые помещения

41 проект найдено

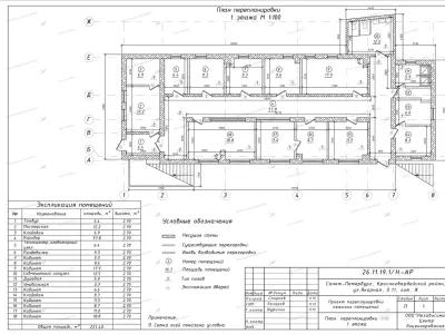
📌 Обследование и разработка документации для ГУП «ТЭК СПб»: улица Рощинская, дом 21, литера Б, улица Якорная, дом 11, литера Ж
Адрес
ул. Рощинская, дом 21, лит. Б, ул. Якорная, дом 11, лит. Ж
Район
Красногвардейский район СПб

📌 Обследование и разработка документации для ГУП «ТЭК СПб»: улица Рощинская, дом 21, литера Б, улица Якорная, дом 11, литера Ж

  • Что хотели изменить Клиент — Государственное унитарное предприятие «Топливно-энергетический комплекс Санкт-Петербурга» (ГУП "ТЭК-СПб")
  • Требовалось оформитьпровести обследование и разработать проектную и техническую документацию в соответствии с действующими нормами
  • Особенности проекта Объект — нежилое помещение, где любые изменения должны быть точно зафиксированы и оформлены
📌 Узаконивание перепланировки после ремонта: проспект Энергетиков, дом 35, корпус 4, литер А
Адрес
пр. Энергетиков, дом 35, корп. 4, литер А
Район
Красногвардейский район СПб

📌 Узаконивание перепланировки после ремонта: проспект Энергетиков, дом 35, корпус 4, литер А

  • Что хотели изменить Клиент уже завершил перепланировку и хотел привести документы в порядок, чтобы избежать проблем в будущем
  • Обратился за услугой «под• Провести переобмер квартиры после выполненной перепланировки; • Подготовить комплект документов для ввода объекта в эксплуатацию
  • любые изменения без проекта могут вызвать сложности при продаже, особенно если банк запросит актуальный техпаспорт
📌 Согласование перепланировки в нежилом помещении: улица Красного Текстильщика, дом 9-11, Лит.А, пом. 12-Н
Адрес
ул. Красного Текстильщика, дом 9-11, Лит.А, пом. 12-Н
Район
Центральный район СПб

📌 Согласование перепланировки в нежилом помещении: улица Красного Текстильщика, дом 9-11, Лит.А, пом. 12-Н

  • Что хотели изменить • Описание объекта и объёма работ находится в разработке
  • На текущем этапе ведётся техническое обследование помещения
  • Мы формируем техническое задание и проверяем возможности будущей перепланировки